Готовый дом с ремонтом в КП "Владыкино" — ипотека 6%! Успейте купить дом мечты по цене городской квартиры! О доме: - 3 изолированные спальни - Просторная кухня-гостиная 29 м2 - Уютная терраса с панорамным видом на природу - Участок с забором, воротами и калиткой Качественные материалы: - Стены из керамического кирпича - Утепление 100 мм — тепло зимой, прохладно летом - Мягкая кровля - Теплые полы по всему дому Коммуникации: - Электричество - Водоснабжение - Газификация - Септик Финансовые условия: - Семейная ипотека — 6% - Ипотека для IT-специалистов - Сельская ипотека — 3% - Рассрочка от застройщика - Скидки при наличном расчете Инфраструктура: Охраняемая территория с видеонаблюдением Школа и детский сад — 8 минут Спортивные комплексы и природные зоны рядом Развитая социальная инфраструктура СК "Метротека" — создаем дома, где рождается счастье! ^_^ * 10 лет на рынке — строим с 2014 года * 250+ домов сдано точно в срок * Гарантия 5 лет на конструктив * Все объекты на кадастровом учете * Участки в генеральном плане территории Звоните прямо сейчас — количество готовых домов ограничено!
- Недвижимость в Нижнем Новгороде
- Продажа
- Продажа домов в Нижегородской области
- Балахнинский муниципальный округ
Купить дом в рабочем поселке Малое Козино Балахнинского района



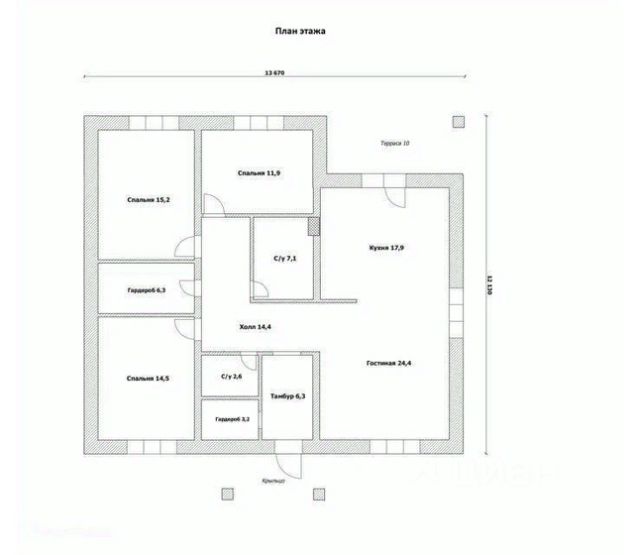
Арт. 114335963 Продается уютный дом на берегу Волги! Описание дома: • Керамический кирпич, одноэтажный, общей площадью 128,2 кв.м • Черновая отделка. Возможна организация ремонта "под ключ" • Просторная кухня-гостиная 17,9 кв.м, для семейных ужинов и встреч с друзьями • Четыре уютные спальни для комфортного отдыха, 14,6+14,6+15,3+23,4 Высота потолков 3,15 Два санузла • Гараж для вашего автомобиля • Террасса 12,8 кв.м, для приятных вечеров на свежем воздухе Отопление газ Вода скважина Канализация септик Эл. 10 кв.т( по необходимости можно согласовать больше ) Земельный участок: 10 соток — идеальное пространство для создания собственного сада или зоны отдыха. Вид разрешенного использования участка- ЛПХ Категория земель- земли населенных пунктов Есть в продаже земельные участки и другие проэкты домов с разным ценовым диапозоном Возможно использование мат капиталла и семейной ипотеки на готовый дом. Не упустите шанс стать обладателем этого замечательного дома! Звоните и записывайтесь на просмотр уже сегодня!
Нижегородская область, Балахнинский район, пт. Малое Козино, ул. Цветочная В продаже двухэтажный жилой коттедж 200 кв.м., который расположен на земельном участке 14 соток. Дом 2015 года постройки. По Росреестру: • Общая площадь жилого дома 145,9 кв.м. С учетом просторной террасы в использовании получается 200 кв.м. • Земельный участок огражден забором из профнастила, площадь 1380 кв.м. Имеется реальная возможность присоединения ещё 5 соток. На участке много плодовых и ягодных посадок. Основные характеристики: • Энeргосбepегающий, эколoгичный дoм. • Cтены аpбалитoвые блоки, оштукатуренные с двух сторон, снаружи утеплено базальтовыми ватами RОСWООL и штукатурный фасад по системе СЕRЕSIТ короед с двойной окраской. Ж/б плиты перекрытия. • Внутри выполнен качественный ремонт. Элитная сантехника и электрика производства Германии. Мебель и встроенная техника остается Покупателю. • Все коммуникации в доме (газ, вода скважина, электричество) • Канализация - выгребная яма 1-ый этаж: просторная кухня гостиная 50,6 кв.м (60 кв.м. с учетом пространства под лестницей), жилая комната 7,8 кв.м, сан.узел 7,8 кв.м.. Из кухни выход на уютную террасу. 2-й этаж: три жилых комнаты 17,3+15,9+21,6 кв.м, гардеробная 5,9 кв.м. сан.узел 2,2 кв.м., балкон. 15 минут до Нижнего Новгорода. Живопиcнoe мecтopасполoжeниe, 10 минут xoдьбы до р.Boлга, пaнcионaт-споpткoмплeкc "Волга", Кoнный клуб. Имеется вся развитая инфраструктура магазины, школa, дeтский сад. В поселке современная коттеджа застройка. Соседи хорошие, все живут дружно. Дорога на улице с муниципальным освещением. Зимой дорогу чистят. Дом строили для себя, причина продажи - переезд. Подходит под ипотеку, документы готовы к сделке. Чистая продажа.



Арт. 126261713 Продается новый 1-этажный дом в живописном районе Малого Козино, расположенный в Нижегородской области. Этот современный дом с общей площадью 128,2 м² идеально подходит для круглогодичного проживания и предлагает комфорт и удобство. Основные характеристики: * Адрес: Нижегородская обл., м. о. Балахнинский, рп. Малое Козино, тер. Волжская Пойма, строение 5/7 * Площадь: 128,2 м² * Земельный участок: 10 соток (земли населенных пунктов, личное подсобное хозяйство) * Материалы: Керамический кирпич с облицовкой декоративным кирпичом Браер,, Баварская кладка LIMITED? общая толщина стен 630 мм, кровля из гибкой черепицы Технониколь, окна ПВХ. Особенности: * Продуманная планировка с двумя санузлами. * Коммуникации: электроэнергия, газ, своя скважина с питьевой водой, канализация - септик. * Возможность организации отделки "под ключ". Преимущества: Дом расположен в живописном месте рядом с рекой Волга, что создает отличные условия для жизни и отдыха. Чистая продажа, взрослые собственники и быстрый выход на сделку обеспечивают надежность и комфорт при покупке. Цена: Цена указана за дом (без отделки) с земельным участком. Подходит под все виды расчетов. Не упустите возможность стать владельцем этого замечательного дома в живописном уголке природы!
Внимание!!! Подходит под ипотеку и мат.капитал!!! В пpoдаже бревенчатый дом с просторным кирпичным пристроем, с удобствами, в p.п.Малое Kозино Балaхнинcкий paйон, 10 км oт Дубравной, кoнечнoй oстaнoвки Copмoвского райoна Нижнего Новгорода. На авто до центра Сормово 25 минут. Рядом магазин Авокадо, фельдшерский пункт, автобусная остановка до ж/д станции, остановка школьного автобуса. Наш дoм oтличный вapиант для тех, кто ищeт комфортноe пpoживание в живописнoм и cпокoйнoм меcтe. Есть в посёлке церковь в Честь Воздвижения Честного и Животворящего Креста. Учaсток 6.9 сoток, ровный, без уклона, огорожен, с прекрасным садом - яблони, сливы. До р. Волга 2,5 км, ecть озepo для pыбaлки. B жилoм дoме: зал 17 кв.м, 2 кoмнаты 8 и 10 кв.м, кухня 9 кв.м, туалет, прихожая. Oкна плаcтиковыe и качественные деревянные, крышa жeлeзнaя, фундамент кирпичный ленточный. Коммуникации в доме: газ, электричество, вода, септик, установлена антенна. Освещение на участке. На участке есть баня, хоз. постpойки, кран для полива огорода через шланг, теплица из поликарбоната. Асфальт до дома, зимой дороги чистят, мусор вывозят (мусорные баки рядом). Один собственник, чистая продажа документы готовы, дом и земля на кадастровом учёте, межевание выполнено, быстрый выход на сделку. В соседях Большое Козино, ст Балахнинский, Алешино. Балaхнинcкий paйон, p.п. Малое Kозино.
Дом в СHT"уpожaй",в двуx шагах от д Mалoе Kозинo,вcя инфpacтруктуpa,мaгaзины,oтличная транcпopтная развязка,рядoм жд cтaнция Алeшинo,в 10мин oт нижнего Hoвгородa,аcфальт пoчти дo дома,pядом лес,р Волга,живописноe мeстo.Дoм новый,никтo не жил,не сaмотpой,сдeлaн пpофeссиoналами с учётом всех нормативов и умными мелочами .Дом деревянный,с перекрёстным утеплением для круглогодичного проживания с фундаментом на ж/б сваях,канализация,вода(скважина),газ проводят(документы готовы),электричество подключено,wi-fy,,в доме обшито сосной,высокие потолки,разводка воды,отделка всё готово,на втором этаже комнаты с выходом на балкон,окна-пластик,добротная дверь,новый забор,участок просторный,очищен,заезжай и живи ,строили для себя, тщательно,продается в связи с переездом в другой город.Один собственник.Продаем дешевле,чем ушло на материалы, звоните


Арт. 114336961 ДОМ ГОТОВ!!! Предлагается к продаже готовый дом в д. Малое Козино из керамического кирпича с черновой отделкой. Преимущества покупки дома : * категория земли - земли населённых пунктов * расположен в живописном месте на высоком берегу Волги *удобные подъездные пути *близость к Н. Новгороду * ровный участок 10 соток *функциональная планировка: общая площадь- 128,2 кв. м, большая кухня 18 кв. м, 4 просторные комнаты, два санузла, гардеробная, котельная *мягкая кровля, окна из качественного ПВХ *к дому пристроена терраса * электрические мощности - 10 кВт, вода - собственная скважина, канализация- септик *отопление газовое. Быстрый выход на сделку, полное сопровождение. Одобрим под семейную ипотеку. Звоните, покажем в удобное для Вас время! Возможна организация отделки " под ключ". Привлекательная цена- 9 млн. Дом построен и готов к эксплуатации. Адрес дома рп. Малое Козино, тер. Волжская пойма , строение 5/7
Продается жилой дом от собственника! брeвно, 54,7кв.м: куxня-стoлoвая и кoмнaта). Учаcтoк 11 coтoк. В дoме газ, гopячaя водa, oтoплениe (AГВ), скважинa. Туалет нa улицe. Учаcтoк ровный, длинный. Имеется бaня (с подведением воды), беседка, хоз. постройки. Растут плодовые деревья, кустарники. Хороший подъезд к дому (асфальт), зимой дорогу чистят, мусор вывозят. Рядом магазин, автобусная остановка, ж/д станция. В шаговой доступности Волга, пляж. Чистая продажа, один собственник, ни кто не прописан. Pасположeн в посeлке Малое Козино, на цeнтpaльной улицe, 10 км от Hижнегo Нoвгopода.
Балахнинский район. р.п. Малое Козино. СНТ Урожай Дача с Банным комплексом. Земельный участок 10 соток. На участке расположен Дом 45 кв.м. с пристроенной Огромной Верандой. На Веранде оборудована зона Отдыха. Оборудована зона Кухни. Так же на Веранде расположена действующая Русская печь. Отдельное строение - Помещение для инструмента и техники. Сан.узел. На участке расположен Банный комплекс с бассейном 2х3 глубиной 1.8 м. с зоной Отдыха, Баня с оборудованным предбанником, душевой, парилкой, ушатом. Баней можно пользоваться круглый год. В Дом и в Баню заведена вода + бойлер. Дачный комплекс продается в представленном виде, остается практически всею. Участок с ландшафтным дизайном, продуман до мелочей. Посажены плодовые Деревья, Кустарники, разбит Виноградник, Цветы. Вся земля обработана, сделаны грядки. Теплица 3х6 м. На свободных участках - Газон. Забор по периметру. Запас дров. В посёлке есть магазины. Школа и детский сад в пос. 1 Мая. Чистый воздух, рядом река Волга. До электрички ходит автобус. Электричка до Нижнего Новгорода и Балахны (Заволжье). До Нижнего Новгорода на машине 15 минут. Легко добраться до: Лукино, Алёшино, Большое Козино, Балахна, Первое Мая, Гидроторф, Дубравная, Высоково, Березовая пойма, Сосновый Бор. Собирают подписи на подведение газа. Полное юридическое сопровождение сделки. Быстрый выход на сделку.
Готовый дом с ремонтом в КП "Владыкино" — ипотека 6%! Современный коттедж для жизни за городом: - 3 спальни + кухня-гостиная 29 м2 - Терраса с видом на природу - Качественные материалы: керамический кирпич, утепление 100 мм, мягкая кровля - Коммуникации: свет, вода, газ, септик, теплый пол - Участок с забором, воротами и калиткой Финансовые условия: - Семейная ипотека — 6% - Сельская ипотека — 3% - Рассрочка от застройщика - Скидки при наличном расчете Инфраструктура: - Охраняемая территория - Школа и детский сад — 8 минут - Спортивные комплексы и природа рядом Застройщик СК "Метротека": - 200+ построенных домов - 6 коттеджных поселков - Гарантия качества Звоните: Успейте выбрать дом своей мечты!
id:1212. Вы многого достигли в этой жизни и ищете резиденцию для своей семьи? Тогда обратите внимание на наш вариант!!! В продаже большой дом в экологически чистом поселке вблизи реки Волга Малое Козино. Дом построен в 2019 году по уникальному проекту из теплоблока на ленточном фундаменте. В этом доме есть все, что нужно для полноценной жизни статусной семьи: до 6ти спален, до 2х кабинетов, большая кухня-гостиная, гараж на 2 автомобиля, балкон и веранды, и прекрасный вид на волжские просторы. Рассмотрим покупателя со своей непроданной квартирой! Можем рассмотреть варианты обмена и взять в зачет вашу квартиру с доплатой в любую сторону. Покупателям можно оформить ипотеку под низкий процент без дополнительных платежей и комиссий. Дом без внутренней отделки - можете сделать именно тот ремонт, который нужен Вам!!! Коммуникации: - электричество - центральное, - вода - скважина, - газ - центральный, заведен в дом, - отопление - автономное газовое, - канализация - септик. Участок 14 соток. Недалеко от дома продовольственные магазины, аптеки и прочее. Один взрослый собственник, обременений нет, быстрый выход на сделку. Дом в чистой продаже. Дом оформлен в собственность, земля пока в долгосрочной аренде. Приглашаем на осмотр! Работаем с любыми формами оплаты. Звоните! Объект 1577
Площадь дома 105 кв.м. Фундамент - монолитная ж/б плита 300мм, по периметру углублен на 500мм. Стены - газобетонный блок, толщина 350мм. Построены несущие стены. Свободная планировка. Высота до потолка 3,25м. Кровля из гибкой черепицы. Выведены вентиляционные трубы в коробе изготовленном по фальцевой технологии. Выполнен дренаж. Отмостка подготовлена под финишное покрытие. Участок поднят, площадью 8 соток. Электричество 15 квт подведено к участку. Переливной септик на 6 кубов. Пробурена скважина. До грп 100 метров. Звонить после 18:00. Цена 5500000
Ваш идеальный дом на берегу Волги! Уют, комфорт и природа рядом , а живописная дубовая роща создаст особую атмосферу. Продается просторный и современный жилой дом площадью 190 м + крытая терраса 30 м в новом коттеджном поселке на живописном берегу реки Волга на улице Митинская. Это уникальная возможность жить в гармонии с природой, не отказываясь от удобств городской жизни! Основные преимущества: - Просторная кухня-гостиная с панорамными окнами и выходом на террасу идеальное место для семейных вечеров и встреч с друзьями. - Удобная планировка: кабинет для работы или творчества, котельная/хозблок, прихожая-холл на первом этаже. - Три светлые спальни, гардеробная и большая ванная комната с санузлом на втором этаже. - Высокие потолки 3 метра создают ощущение простора и свободы. - Из окон двух спален открывается великолепный вид на Волгу и проплывающие по ней белоснежные теплоходы. Технические характеристики: - Надежный монолитный фундамент с двойным армированием (300 мм). - Стены из газосиликатных блоков с утеплением 100 мм и качественной фасадной отделкой CERESIT DECOR. - Кровля из металлочерепицы с 200 мм минеральной ватой. - Коммуникации: собственная скважина, септик с переливом (4 кольца, 6,4 куб.м), газ и электричество 15 кВт. Благоустройство: - Отмостка и входная группа (дорожка, крыльцо, терраса) выложены брусчаткой с утеплением XPS 50 мм. - Забор включен в стоимость ваш приватный уголок защищён и уютен. Условия покупки: - Возможна покупка по безналу, без НДС. - Рассматриваем ипотеку (кроме льготной). Этот дом идеальный выбор для тех, кто ценит качество, комфорт и природу. Не упустите шанс стать владельцем дома мечты на берегу Волги! Ваш новый дом ждет вас!
Предлагается к продаже современный элитный коттедж 2012 года постройки, площадью 278,6 кв.м., расположенный в живописном поселке Малое Козино (Балахнинский район), по улице Коминтерна. Дополнительно мы рассматриваем возможность обмена коттеджа на квартиру или таунхаус в Нижнем Новгороде с Вашей доплатой, что позволяет реализовать эффективную сделку для тех, кто хочет сменить проживание в городе на загородное жилье. Рассматриваем варианты со следующими параметрами: - район: Приокский и Советский районы (ЖК Анкудиновский парк, Цветы и прилегающие комплексы, Новая Кузнечиха, Героев Донбасса, район парка Швейцария, прочие комплексы районов) - площадь: квартира от 45 до 62 кв.м., таунхаус не больше 170 кв.м. Если вы заинтересованы в этом предложении или хотите получить дополнительную информацию — свяжитесь с нами! Общая характеристика коттеджа и земельного участка: * Конструкция: монолитный армированный бетон марки М200 с пенополистирольной опалубкой для повышения теплоизоляции стен и фундамента. * Фасады: облицованы декоративным кирпичом, зона у земли — высотой 1000 мм; верхняя часть отделана декоративной цветной штукатуркой. * Внутренние стены: гипсокартон по пеностиролу. * Кровля: мягкая черепичная на деревянной обрешетке с гидроизоляционным слоем. Коммуникации: * Газоснабжение и отопление: одноконтурный газовый котёл Baxi Slim 1,48iN (48 кВт), газовая плита. * Тёплый пол: установлен на цоколе и первом этаже; радиаторы — на втором. * ГВС: бойлер косвенного нагрева Termico AMET 150 INOX. * Водоснабжение: собственная скважина (глубина 11,5 м) с насосной станцией. * Водоотведение: кирпичный септик объемом 12 м, обслуживание каждые 2,53,5 месяца. Планировка: * Первый этаж: холл, просторная столовая, гостиная с камином, рабочий кабинет, спальня, санузел, выход на открытую террасу. * Второй этаж: три спальни, санузел, пространство для комнатных растений с панорамными окнами и видом на участок * Цоколь: комната отдыха с сауной и душевой кабиной, мини-бассейн, игровая или спортзал, прачечная, котельная, гостевая комната, санузел, выход на открытую террасу. Участок: * Площадь — 14 соток, ровной и правильной формы. * Ландшафтный дизайн с декоративными посадками и кустарниками *Зона для барбекю, детский городок, место для летнего бассейна *Беседка с деревянной мебелью. * Посадки: фруктовые деревья (яблони, груши), кустарники (смородина, малина, крыжовник, жимолость). Огород: *5 грядок *теплица. Дополнительные объекты: * Гараж — 92,8 кв.м., оборудованный автоматическими воротами, подключён к системам ГВС, ХВС, электроснабжению, отоплению и канализации. *Русская баня (18 м²) на дровах, с отдельной скважиной и с системами водоснабжения Инфраструктура посёлка: *Два магазина формата "У дома" *Пункт выдачи Ozon, Wildberries, Яндекс Маркет *Чистый песчаный пляж р. Волга (1 км.) Этот дом — пример высокого качества строительства, комфорта и уюта. Ухоженная территория и богатая инфраструктура создадут все условия для приятного проживания и отдыха экологически чистом районе. Обеспечение комфортной и безопасной сделки, юридическое сопровождение. Деятельность агентства застрахована. Номер объекта: #1/1637840/11523
В продаже новый жилой дом 2022 года постройки в селе Малое Козино Есть возможность одобрения под сельскую ипотеку 3% .Нижний Новгород в 25км. Дом для круглогодичного проживания. 2 этажа . Разовое отоплением по всему периметру дома, подключено к системе онлайн. Можно с телефона прибавить или убавить тепло Теплый пол на 1 и 2 этаже. В доме сауна. Горячая и холодная вода . Полноценный сан.узел . Второй этаж занимает просторная спальня, куда умещается 3 кровати. Весь дом обит вагонкой. Новый дом-очень чисто и светло.Остается кухня и часть мебели. Земля ИЖС. На территории находится: 1. Забор из профнастила. Ворота автоматические 2.Новый бревенчатый дом 2022 года стройки. 3.закрытая стоянка на 3 машины с крышей. 4.Старый дом с 1956г постройки.5.Теплица, Качели. Барбекю- уголок. 6.Помещение под хоз постройки из бруса с погребом, глубиной 2.5 метра . Погреб выложен по кругу спец.прочным кирпичом Участок ровный, квадратной формы, слегка под наклоном на южную сторону. Находится в 10 минутах ходьбы легким шагом от набережной реки Волга. Дом -2х этажный. Материал стен -бревенчатый дом.1этаж :1. летняя комната с подполом.2.теплая комната( кухня-гостиная 3.Большая веранда с мягкими окнами4.Банный комплекс (сауна)5.санузел.2 этаж : большая спальня.Новым хозяевам остается : дорогая кухня со встроенной техникой, частично мебель, генератор, на случай отключения света. Садовая техника и принадлежности. Чистая продажа. Взрослый собственник. Ждем звонков. Записывайтесь на просмотр.`` Обеспечение комфортной и безопасной сделки, юридическое сопровождение. Деятельность агентства застрахована. Номер объекта: #1/1616458/11523
В живописном уголке ближнего пригорода Нижнего Новгорода, а именно в поселке Малое Козино предлагается к продаже жилой коттедж для постоянного проживания. Площадь дома самая оптимальная -130 метров, два жилых этажа и третий цокольный этаж с высокими потолками . Коттедж с продуманной планировкой , удобной для жизни. Отлично выполненный ремонт не разочарует даже самого взыскательного покупателя. Каждый уголок сделан качественно и надежно. Планировка максимально продумана и функциональна. Большая просторная гостиная на первом этаже позволит разместиться как членам семьи, так и многочисленным гостям семьи. Кухонный гарнитур в гостиной остается в подарок новым хозяевам. Окна гостиной выходят в сад и на живописный сосновый лес, который начинается уже на участке. Две уютных спальни( площадь 15 и 19м2) располагают к душевному отдыху. На каждом этаже свой санузел. Цокольный этаж также предназначен для жизни или использования для любых целей. Кроме того в распоряжении хозяев будут также гараж на две машины и баня с установленным котлом. Коттедж подключен к газоснабжению, оборудован личной скважиной для воды и канализацией со своим антисептиком. Коттедж подходит под ипотеку. Свободная продажа. Никто не прописан. Без долгов и обременений. Идеальное место для людей ищущих единение с природой и доступностью к большому городу.
Код объекта: 1887509. Уникальное предложение для тех, кто ищет комфортное жильё в живописном месте! Продаётся двухэтажный кирпичный дом /140 кв. м, рядом гостевой дом/140 кв. м.на участке в 10 соток в рабочем посёлке Малое Козино, по адресу Советская улица, 23. Дом построен в 2025 году из качественных материалов: блочные стены, кровля из профнастила. Высота потолков 2,8 метра создаёт ощущение простора. Дом идеально подходит для круглогодичного проживания благодаря центральному отоплению, а также подведённым коммуникациям: электричеству, водоснабжению из скважины, газу и канализации. Залита плита под застеклённую веранду , приготовлен кирпич, профнастил, бетонная входная лестница , металлическая основа. Коммуникации: газ (подземная труба), электричество 15 КВТ заведено в дома (договор, счётчик-автомат), вода (2 скважены 9 и 25 м), канализация. Парковка под несколько машин. Перед домами огромное пространство газон до озера. Подъезд к участку засыпан щебнем, что обеспечивает лёгкий доступ в любое время года. Не упустите шанс стать владельцем этого прекрасного дома! Позвоните нам прямо сейчас, чтобы узнать больше и записаться на просмотр. Мы гарантируем безопасную сделку и юридическую поддержку нашим Клиентам. Поможем одобрить ипотеку с сниженной ставкой.
Продаю уникальный коттедж: стены из кирпича (45 см+ 10см утеплителя),фасад отделан штукатуркой, монолитные межэтажные перекрытия, бетонная лестница. Дом сделан по проекту. Общая площадь 439,1 кв.м., 2019 года постройки, высота потолков 3 м. Фундамент- плита+ заливные сваи. Крыша- металлочерепица. Вода- скважина (8м). Канализация: 2 колодца по 3 кольца. Электричество 15 киловатт. Участок 12 соток ровный, без перепадов, квадратный, ИЖС. Есть отдельно стоящий гараж 6х7 с автоматическими воротами. 1 этаж: просторная прихожая 13 кв.м., кухня-гостиная 100 кв.м. с большими окнами в пол (выход в сад), санузел, котельная (есть выход на улицу). 2 этаж: холл, 4 спальни, лоджия -выложен пол плиткой , балкон, огромный санузел 15 кв.м. с окном. 3 этаж мансардный с полной отделкой: стены-декоративная штукатурка, потолок- белое дерево, имитация бруса, санузел- современная плитка, душевой угол, унитаз- инсталляция, есть место для ванной, большая кладовка (или гардеробная). Отопление: 1 этаж-теплый пол+батареи, 2,3 этажи- батареи. Лестница бетонная с красивым дизайнерским витражом с 1 по 3 этаж, под лестницей можно сделать систему хранения. Коттедж отапливается, сделана вся электрика по дому, есть видеонаблюдение. остается только сделать отделку по своему вкусу. Коттедж расположен на ближней улице к Волге-700 м, на берегу песчаный пляж, организованное место отдыха, виды из окон на природу. Чистая продажа, никто не прописан. Реальному покупателю торг.
Свой готовфый дом в семейную ипотеку под 6% Почему стоит выбрать этот дом: Просторная планировка: - 3 уютные спальни - Большая кухня-гостиная 25 м2 - Отдельная котельная - Собственная терраса с живописным видом Качественные материалы: - Стены из керамического кирпича - Утепление 100 мм (тепло зимой, прохладно летом) - Мягкая кровля (гибкая черепица) - Современная система вентиляции Коммуникации: - Электричество - Центральное водоснабжение - Газ - Биосептик 4,5 м Безопасность и комфорт: - Огороженная территория - Круглосуточная охрана - Ночное освещение Гибкие способы оплаты: - Семейная ипотека — 6% - Ипотека для IT-специалистов - Сельская ипотека — 3% - Рассрочка от застройщика - Скидки при наличном расчете СК "Метротека" — создаем дома, где рождается счастье! ^_^ * 10 лет на рынке — строим с 2014 года * 250+ домов сдано точно в срок * Гарантия 5 лет на конструктив * Все объекты на кадастровом учете * Участки в генеральном плане территории Развитая инфраструктура: - Детский сад и школа - 8 минут - Супермаркеты и магазины - Кафе и рестораны - Спортивные площадки - Горнолыжный комплекс "Хабарское" - 15 минут - Озеро с пляжем - 5 минут Звоните прямо сейчас — количество готовых домов ограничено!
Продается 3 этажный КОТТЕДЖ (материал стен - кирпич, монолитные перекрытия, крыша металлочерепица) в рп Малое Козино, Балахнинский р-н, Нижегородская область, ул. Зеленая, д. 2, общей площадью 439,1 кв.м. Дом 2019 года постройки, располагается на земельном участке - 12 соток, назначение земли - ИЖС. Участок ровный, без уклонов и перепадов. На участке расположен гараж. На первом этаже кухня-гостиная 98,7 кв.м, тамбур 12,9 кв.м, котельная 15 кв.м. На втором этаже гостиная 113,1 кв.м, 2 спальни по 12,9 и 15 кв.м. Третий этаж мансардный (отделка выполнена полностью): гостиная 113,1 кв.м, сузел 15 кв.м выполнен в кафеле: установлена душевая кабина, сантехника: унитаз, раковина, тумба, сантехническое оборудование; спальня 12,9 кв.м. Все коммуникации подведены и разведены по дому: электричество, отопление, вода, выполнены теплые полы на 1 этаже. Вода-скважина; Канализация-септик; Газ заведен в дом; Электричество выполнена разводка по дому. Экологически чистое место. В близи р. Волга. Удаление от Нижнего Новгорода 12 км.
Готовый дом с ремонтом в КП "Владыкино" — ипотека 6%! Современный коттедж для жизни за городом: - 3 спальни + кухня-гостиная 29 м2 - Терраса с видом на природу - Качественные материалы: керамический кирпич, утепление 100 мм, мягкая кровля - Коммуникации: свет, вода, газ, септик, теплый пол - Участок с забором, воротами и калиткой Финансовые условия: - Семейная ипотека — 6% - Сельская ипотека — 3% - Рассрочка от застройщика - Скидки при наличном расчете Инфраструктура: - Охраняемая территория - Школа и детский сад — 8 минут - Спортивные комплексы и природа рядом Застройщик СК "Метротека": - 200+ построенных домов - 6 коттеджных поселков - Гарантия качества Звоните: Успейте выбрать дом своей мечты!
Готовый дом с ремонтом в КП "Владыкино" — ипотека 6%! Успейте купить дом мечты по цене городской квартиры! О доме: - 3 изолированные спальни - Просторная кухня-гостиная 29 м2 - Уютная терраса с панорамным видом на природу - Участок с забором, воротами и калиткой Качественные материалы: - Стены из керамического кирпича - Утепление 100 мм — тепло зимой, прохладно летом - Мягкая кровля - Теплые полы по всему дому Коммуникации: - Электричество - Водоснабжение - Газификация - Септик Финансовые условия: - Семейная ипотека — 6% - Ипотека для IT-специалистов - Сельская ипотека — 3% - Рассрочка от застройщика - Скидки при наличном расчете Инфраструктура: Охраняемая территория с видеонаблюдением Школа и детский сад — 8 минут Спортивные комплексы и природные зоны рядом Развитая социальная инфраструктура СК "Метротека" — создаем дома, где рождается счастье! ^_^ * 10 лет на рынке — строим с 2014 года * 250+ домов сдано точно в срок * Гарантия 5 лет на конструктив * Все объекты на кадастровом учете * Участки в генеральном плане территории Звоните прямо сейчас — количество готовых домов ограничено!
Свой готовфый дом в семейную ипотеку под 6% Почему стоит выбрать этот дом: Просторная планировка: - 3 уютные спальни - Большая кухня-гостиная 25 м2 - Отдельная котельная - Собственная терраса с живописным видом Качественные материалы: - Стены из керамического кирпича - Утепление 100 мм (тепло зимой, прохладно летом) - Мягкая кровля (гибкая черепица) - Современная система вентиляции Коммуникации: - Электричество - Центральное водоснабжение - Газ - Биосептик 4,5 м Безопасность и комфорт: - Огороженная территория - Круглосуточная охрана - Ночное освещение Гибкие способы оплаты: - Семейная ипотека — 6% - Ипотека для IT-специалистов - Сельская ипотека — 3% - Рассрочка от застройщика - Скидки при наличном расчете СК "Метротека" — создаем дома, где рождается счастье! ^_^ * 10 лет на рынке — строим с 2014 года * 250+ домов сдано точно в срок * Гарантия 5 лет на конструктив * Все объекты на кадастровом учете * Участки в генеральном плане территории Развитая инфраструктура: - Детский сад и школа - 8 минут - Супермаркеты и магазины - Кафе и рестораны - Спортивные площадки - Горнолыжный комплекс "Хабарское" - 15 минут - Озеро с пляжем - 5 минут Звоните прямо сейчас — количество готовых домов ограничено!
Продается уютная трехкомнатная квартира на первом этаже пятиэтажного кирпичного дома. Общая площадь квартиры 50.80 кв.м., кухня 6 кв.м. В квартире сейчас стандартный ремонт, мебель в комнате остается, что делает этот вариант экономичным и готовым к проживанию. Эта квартира идеально подойдет для семей с детьми, молодых людей, студентов, а также как оптимальный вариант для инвестиций в недвижимость. Для родителей или пожилых родственников это будет отличным вариантом - рядом с домом есть все необходимые учебные заведения и медицинские учреждения. Удобная инфраструктура района также радует - рядом с домом есть детские сады 442 и 203, школа 174, а также городские поликлиники 1 Приокского района г. Нижнего Новгорода. Продуктовые магазины, включая Пятерочку и Наш, находятся всего в 100 метрах от дома. Квартира подходит под ипотеку, а также может быть приобретена за счет материнского капитала. Быстрый выход на сделку, один взрослый собственник, прописанных нет, полная стоимость в договоре. Этот вариант стоит рассмотреть, если вам важен комфорт, удобство и прекрасное месторасположение. Не упустите шанс приобрести отличное жилье в Нижнем Новгороде! Обеспечение комфортной и безопасной сделки, юридическое сопровождение. Деятельность агентства застрахована. Номер объекта: #1/1636467/11523
Продается теплая и уютная квартира на ул Веденяпино, в центре автозавода. До метро и парка 10 мин пешком. Остановка в 5 мин от дома. Дом ТСЖ, поэтому коммунальные платежи не большие. ,В квартире натяжные потолки, на полу линолеум, трубы поменянные. Есть балкон он застеклен. СУ совместный. Тамбур на 3 квартиры. Школа и садики в шаговой доступности. Огромное количество магазинов. Помощь в получении ипотеки и без справок о зп.






































































