


313 122 ₽/м²
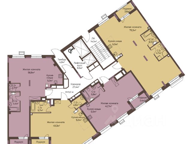
Продается 4-комн. квартира в ЖК "Симфония Нижнего" на 8 этаже. Квартира без отделки, после выдачи ключей можно делать ремонт. Общая площадь: 165.8 кв.м., жилая: 77.7 кв.м., площадь просторной кухни-столовой: 56.7 кв.м. Квартира - распашонка, без проходных комнат, окна выходят на paзные стороны дома. В квартире одна лоджия, два совмещенных санузла. Высота потолков 3.0 м. Дом монолитный, трехподъездный, переменной этажности, от 7 до 9 этажей. Квартира находится в 1-й секции высотой 9 этажей в корпусе 2. На этаже 4 квартиры. В подъезде 1 пассажирский и 1 грузовой лифт. Окончание строительства - 4 квартал 2027 года. Оформление сделки по договору долевого участия. Продолжение застройки в историческом центре города - в границах улиц Ильинская и Новая. Локация с пешеходной доступностью к культурно-развлекательной, торговой, транспортной и социальной инфраструктуре. Вторая очередь жилого комплекса представлена двумя домами, имеющими интересное архитектурное решение. Например, дом 1 выглядит как несколько строений, объединенных общим основанием. Минимализм фасадов, благородные цвета, декоративная подсветка внешний облик определяет характер ЖК: современный, эстетичный, респектабельный. Вся территория продумана до мелочей: закрытый двор только для резидентов, ландшафтный дизайн, зоны отдыха. Здесь представлены квартиры свободной планировки без стен и перегородок, а значит вы сами создаете конфигурацию своего жилого пространства. Особое внимание эксклюзивным лотам: двухуровневые квартиры, квартиры с видом на историческую застройку и собственной террасой. Жители смогут управлять домашними системами со смартфона, а IP-домофоны будут оснащены функциями распознавания лиц и видеонаблюдения. Места общего пользования служат созданию настроения комфорта и уюта уже с входной группы. Холлы и подъезды выполнены по дизайн проекту и подчеркивают высокий статус дома. Для владельцев авто предусмотрен подземный паркинг, оснащенный доступом из лифта и местами для зарядки электромобилей.























































































































