К Вашему вниманию прямая продажа роскошного двухэтажного жилого дома, площадью 314,8 м2 в Автозаводском районе , Новое Доскино.
Особого внимания заслуживает открытая деревянная терраса (есть выход из кухни), размером 100 м2, победительница конкурса "Летняя веранда" , проводимого магазином
Castorama в 2014г !
Одним из главных преимуществ дома является его расположение в тупике улицы , в окружении деревьев, прямо на берегу лесного озера ! Где зимой можно кататься на лыжах и коньках неограниченное время , а рыбачить и летом и зимой!
На участке возведен сруб добротной бани на винтовых сваях размером 7х5 метров, к которому подведены вода, канализация , электричество.
Есть разворотная площадка около дома , асфальтовая дорога по всей улице.
Дом построен на буроналивном фундаменте из газоблоков , фасад сделан с применением декоративной штукатурки .
Во внутренней отделке использованы дорогостоящие строительные материалы: натуральное дерево , облицовочный камень.
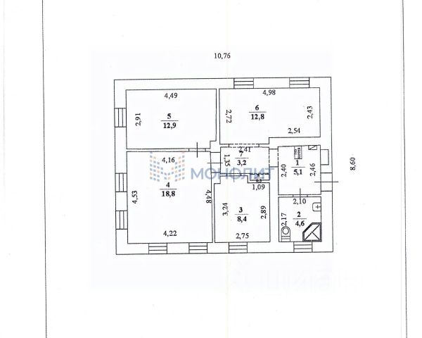
Первый этаж: кухня, зал со вторым светом , две спальни , кладовка с выходом в сад , с/у с ванной , тех.комната, высота потолков 3,2 м.
Второй этаж: две спальни , просторный холл с двумя диванами и огромными книжными стеллажами, с/у.
На территории перед домом есть навес под две машины. Рядом расположен отдельно стоящий домик 40 м2 , используется в качестве мастерской , кладовки.
Участок вокруг дома утопает в зелени! Две шикарные голубые ели, маленькие елочки , пихта , плодовые деревья , кустарники , необыкновенной красоты гортензии и другие цветы - посажены и выращены хозяевами.
Вода в дом поступает из колодца , качество воды отличное !
Отопление газовое , с помощью напольного котла Baxi .
Канализация - септик на 6м3.
Коммунальные платежи состоят из платы за вывоз мусора , обслуживания септика, оплата газа и электричества по счетчикам.
Остановка общественного транспорта, продуктовые магазины , пункты выдачи интернет заказов, отделение почты, медпункт - все находится в шаговой доступности.
Видео -показ - по запросу.
Собственник один, быстрый выход на сделку.
Остались вопросы- звоните ! Показ по предварительной договоренности.
АН ЧЕКНИ является партнером самых стабильных банков ( ПАО Сбербанк России, Банк ВТБ ПАО и другие), мы поможет Вам оформить ипотеку без проблем и хлопот с более выгодной % ставкой. Мы оказываем весь комплекс услуг по покупке или продаже в режиме одного окна, осуществляем юридическое сопровождение сделки и 3 года после неё. Деятельность агентства застрахована. дома В поселке Новое Доскино города Нижнего Новгорода.