


263 873 ₽/м²
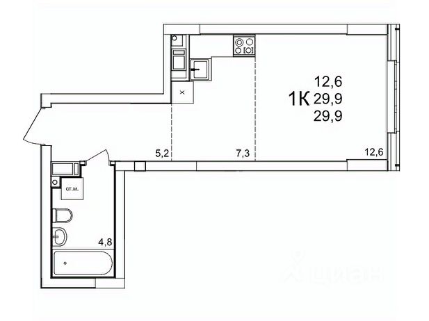
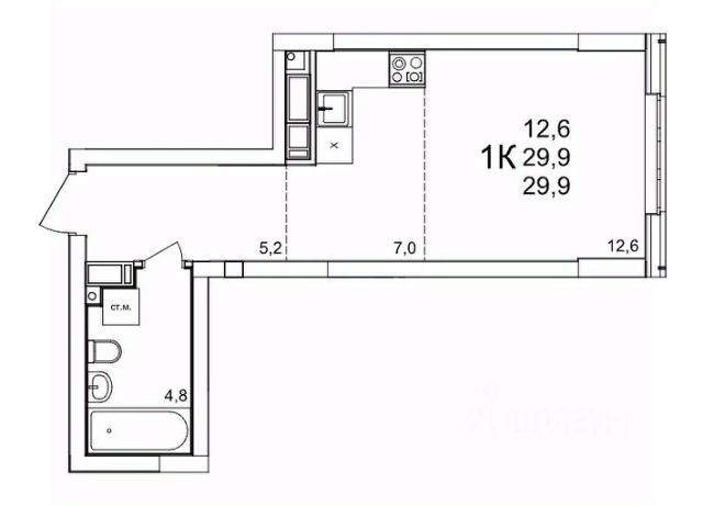
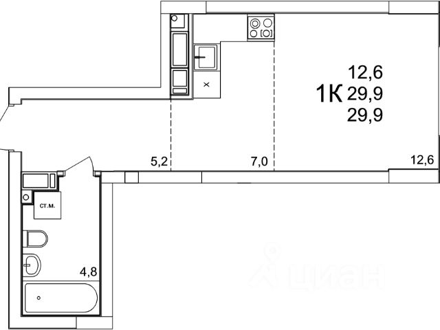
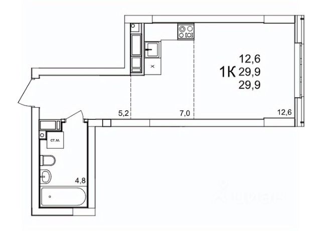
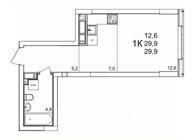
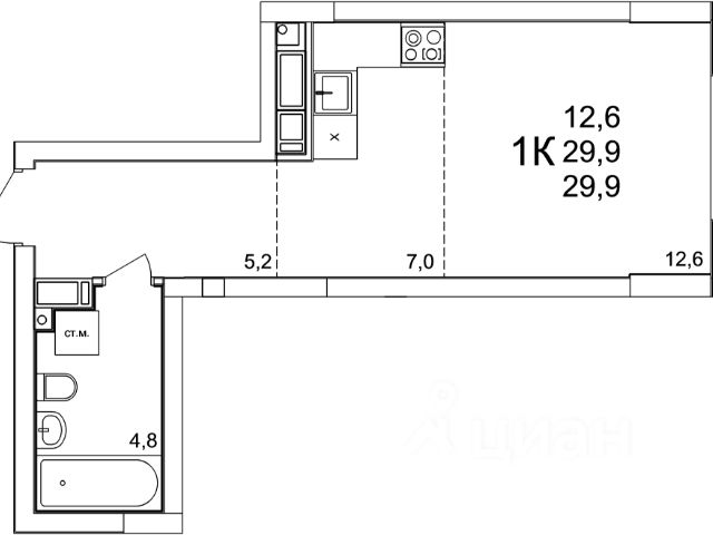
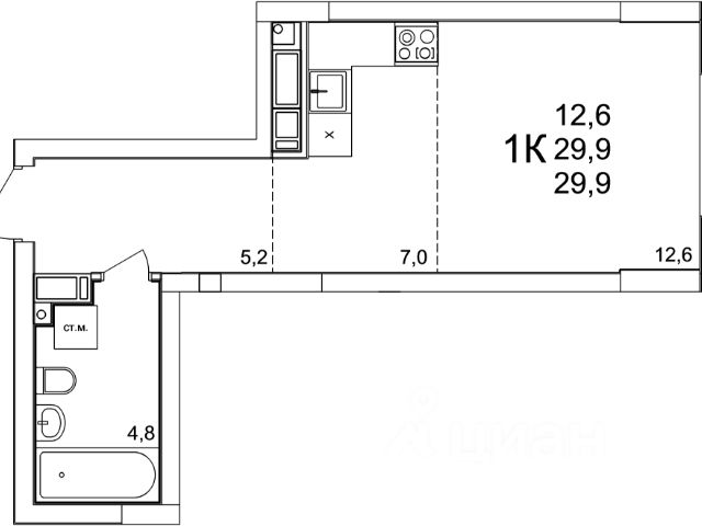
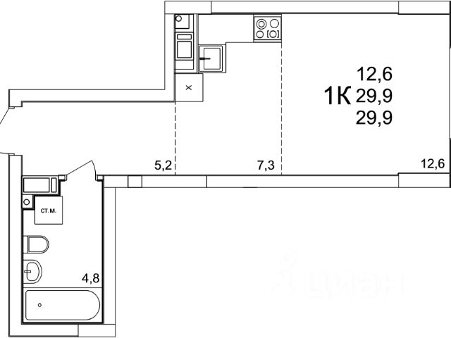
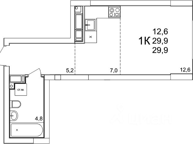
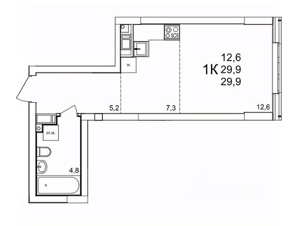
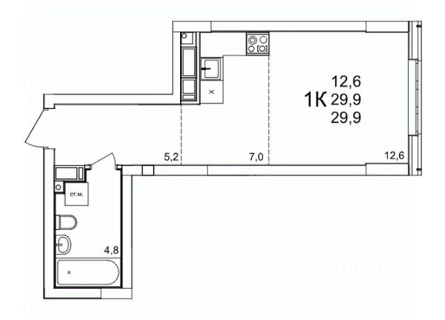
Однокомнатная квартира-студия от застройщика с отделкой в ЖК "Кузнечиха город" на 7 этаже. Общая площадь: 23.4 кв.м., площадь гостиной 12.7 кв.м., из которых 3.6 кв.м. выделено под кухонную зону. Все окна выходят на одну сторону. В квартире одна лоджия, один совмещенный санузел. Высота потолков 2.5 м. Квартира находится в корпусе 15. Дом монолитный, одноподъездный, высотой 25 этажей. На этаже 8 квартир. В подъезде 2 пассажирских и 1 грузовой лифт. Окончание строительства - 2 квартал 2028 года. Оформление сделки по договору долевого участия. "Кузнечиха Город" это современный семейный жилой комплекс расположенный в Советском районе в окружении парков и развитой инфраструктуры. Проект ориентирован на семейную аудиторию, поэтому особое внимание уделяется благоустройству и формированию соответствующей инфраструктуры. 1-ая очередь застройки включает в себя 12 кварталов, состоящих из 37 домов разной этажности. В 2024 году строительство первой очереди было завершено. На территории первой очереди ЖК работают 2 детских сада и школа, открыто более 100 объектов торговой инфраструктуры. 2-ая очередь застройки - это еще 16 домов по 10 и 25 этажей. По состоянию на октябрь 2025 г. в эксплуатацию введено 12 домов. Помимо жилых домов, здесь появится и развитая социальная, коммерческая, транспортная инфраструктура и благоустройство. На территории второй очереди уже работает школа, ведется подготовка к строительству детского сада на 320 мест. В 3-ей очереди застройки запланировано строительство 11 домов высотой 10, 18 и 25 этажей. Кроме строительства жилых домов, проект предусматривает создание развитой социальной, коммерческой и транспортной инфраструктуры. Ведется подготовка к строительству детского сада, рассчитанного на 220 мест. Все квартиры в ЖК передаются клиентам с чистовой отделкой класса "комфорт" В жилых комнатах, кухне и прихожей — обои нейтрального оттенка, белые межкомнатные двери без стекол. Пол в жилых комнатах — ламинат под дуб, в кухне и прихожей — плитка. Натяжные потолки во всех помещениях. Стены и пол в ванной и санузле будут отделаны керамогранитом, в ванной установлен полный комплект сантехники, включая акриловую ванну с экраном и смесителем, тумбу для хранения под раковиной, зеркало с подсветкой. Застройщик также позаботился и о деталях, поэтому все инженерные коммуникации, стояки водоснабжения и канализации будут скрыты декоративными коробами.





















































































