6 200 000 ₽
109 155 ₽/м²
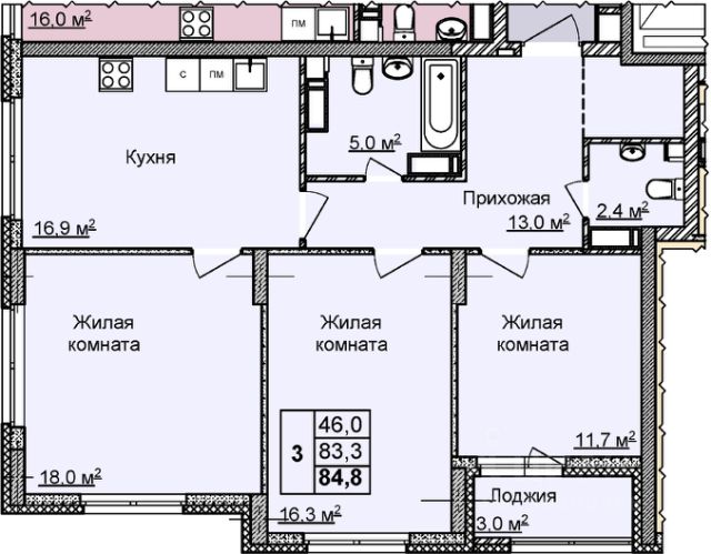
id:1169.
Продаётся квартира с хорошим ремонтом на первом этаже 5-ти этажного кирпичного дома. Въезд во двор по двум асфальтированным дорогам. Парковка перед домом.
РАССМОТРЮ ОБМЕН НА 1 КОМНАТНУЮ КВАРТИРУ. Рассмотрю ваш непроданный объект в счёт квартиры с доплатой в любую сторону.
3 окна - выходят на восточную сторону, на парковку. 1 окно - на юг, во двор.
Холодная вода, горячая вода, водоотведение, энергоснабжение, отопление и газоснабжение - центральные. Счётчики установлены на воду, газ и электричество.
Установлены 4 пластиковых стеклопакета. Подоконники широкие, откосы новые.
Ванная комната и сан узел - в плитке.
Кухонный гарнитур готовы оставить. Также шкаф в коридоре и стенку в комнате, душевую кабину в ванной. Остальное по договорённости.
Школы находятся: Лицей 7 - 620 м, средняя школа 9 - 730 м, средняя школа 3 школа с углубленным изучением отдельных предметов - 760 м.
Детский сад 28 "Улыбка" - 95 м, Детский сад 29, г. Кстово, 400 м, детский сад 19 "Солнышко", 453 м.
Рядом 35 магазинов: среди них Кстовские дворики, Красное&Белое, Магнит, магазин выпечки
Столички, аптека, 100 м, АптекаПлюс - 220 м, Апрель, аптечный пункт - 230 м.
Два взрослых собственника. Альтернативная продажа. Показ по предварительной договорённости.
Звоните прямо сейчас! Не упустите свой шанс стать счастливее в этом году!





















































