68 254 ₽/м²
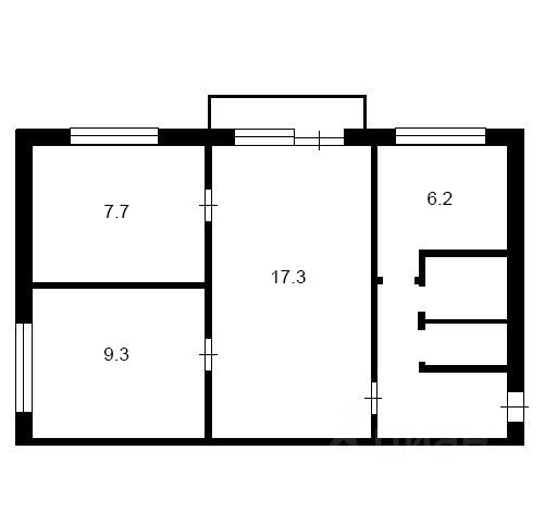
Продается просторная трехкомнатная квартира в кирпичном доме. Общая площадь — 63 кв. м, кухня — 6 кв. м. балкон 8 м. Квартира находится на 3 этаже пятиэтажного дома, построенного в 1982 году. Окна выходят во двор, поэтому в квартире всегда тихо и уютно. Есть балкон, который станет отличным местом для утреннего кофе или цветов. Квартира без ремонта, поэтому вы можете воплотить все свои дизайнерские идеи в жизнь. Планировка позволяет создать комфортное пространство для семьи. В квартире есть один отдельный санузел, что удобно для повседневного использования. Дом в хорошем состоянии, построен из кирпича, что обеспечивает хорошую звуко- и теплоизоляцию. Парковочные места доступны рядом с домом, поэтому можно не беспокоиться о том, где оставить автомобиль. Рядом с домом находятся все необходимые объекты инфраструктуры: школы и детские сады для детей, клиники для вашего здоровья, а также множество магазинов, где можно купить все необходимое. Удобная транспортная доступность позволяет быстро добраться до любой точки города. Квартира продается без посредников, от собственника. Возможна продажа в ипотеку, все документы готовы к сделке, обременений нет. Это отличная возможность для тех, кто ищет жилье для себя или для сдачи в аренду. Приглашаем вас на просмотр этой замечательной квартиры. Звоните и записывайтесь на удобное для вас время. Мы будем рады помочь вам стать владельцем этой уютной квартиры!


















































































