


184 231 ₽/м²
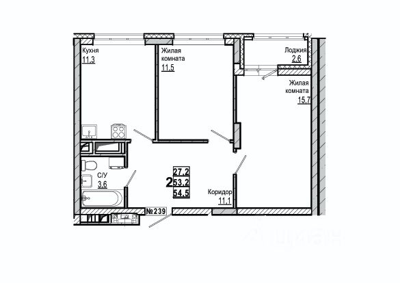
Продается 1 комнатная квартира на 13 этаже строящегося жилого комплекса комфорт-класса Дом на Маяковского от одного из крупнейших застройщиков Нижегородской области ГК ННДК. Квартиру можно купить по ипотеке. Квартира сдается в черновой отделке, но есть возможность за дополнительную плату сделать отделку под ключ. Рядом вся необходимая инфраструктура - магазины, школы, садики и парк. В ЖК будет закрытая безопасная территория с детской и спортивной площадками. Для автомобилей предусмотрена наземная парковка. В доме будет установлена станция очистки холодной воды. На -1 этаже можно купить сити-бокс (место для хранения габаритных и сезонных вещей).










































































