Первичная продажа



Стандартаная ипотека
ещё 1 акция
С отделкой
сдача ГК: 1 кв. 2028 года
Горьковская
7 минут на транспорте
12 396 163 ₽
274 251 ₽/м²
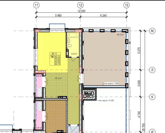
Однокомнатная квартира с предчистовой отделкой в ЖК "Идель. Квартал на Сенной" на 2 этаже. Общая площадь: 45.2 кв.м., жилая: 13.6 кв.м., площадь просторной кухни-столовой: 16.7 кв.м. Все окна выходят на одну сторону. В квартире один балкон и одна лоджия, один совмещенный санузел. Высота потолков 2.8 м.
Дом монолитный, многоподъездный, переменной этажности, от 11 до 19 этажей. Квартира находится в 3-й секции высотой 12 этажей в корпусе 1. На этаже 5 квартир. В подъезде 2 пассажирских и 1 грузовой лифт. Окончание строительства - 1 квартал 2028 года. Оформление сделки по договору долевого участия.
"Идель. Квартал на Сенной" — это экосистема, где каждый элемент подчеркивает ваш статус и создает неповторимый комфорт.
Перспективная локация.
Квартал бизнес-класса строится рядом с пл. Сенной и примыкает к зоне будущего Правительственного квартала. Рядом находятся магазины, ПВЗ, учебные заведения, а транспортная сеть пополнится станцией метро в 5 минутах от дома.
Благоустройство.
Закрытые дворы с игровыми, спортивными площадками, тихими уголками для отдыха, йога-сквер и зона общественных огородов для семейного досуга. За пределами квартала детский сад на 200 мест (сдается в 2028 г.) и ландшафтный парк с памп-треком, скейтпарком, вело- и пешеходным маршрутами. Первый этаж займет торговый и гастро-кластер со всем необходимым для комфортной жизни наполнением. Главное место притяжения - открытая площадь с ресторанами, фонтаном, арт-объектами и лаунж-зонами.
Квартиры с продуманной жилой зоной, мастер-спальней, кабинетом, гардеробной или постирочной, где уже выполнена отделка white box. Более 50 типов популярных планировок, а также эксклюзивные лоты с террасой или патио.
Гранд-лобби с переговорной, кофейней, постоматом, мягкой зоной ожидания. Авторский дизайн холлов с отделкой мрамором, камнем, деревом, керамикой. Роскошная люстра в экстерьере — визитная карточка квартала. В МОПах колясочная, гостевой санузел, лапомойки. Бесшумные лифты можно вызвать без использования рук.
Собственная сервисная компания и мобильное приложение, в котором доступны цифровые документы, платежи, домофон, консьерж, видеонаблюдение, заказ сервисных услуг.
Около 1000 парковочных мест в подземном паркинге и на наземной парковке.
ООО СЗ "ИДЕЛЬ" — новое направление в ГК "Жилстройинвест", знакового девелопера Поволжья. Компания 6 раз удостоена золотого знака "Надёжный застройщик России". Продается квартира с балконом в районе Нижегородский в городе Нижний Новгород.























































































































