


204 243 ₽/м²
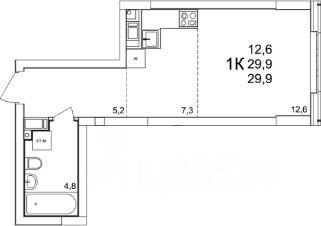
СДАЧА ДОМА В 2026 ГОДУ! Жилой комплекс "Авиатор" расположен на ул. Ярошенко рядом с Cормовским парком, куда у жителей будет приватный вход по собственным ключам. Рядом - сразу два зоопарка, озеро, аттракционы и многое другое. В пешей доступности находятся дворец спорта "Юность" и стадион "Труд" для любителей здорового образа жизни. Для семей с детьми рядом есть 11 детских садов и 10 школ, до которых придется идти всего около 5-10 минут. Также неподалеку находятся торговый центр, множество магазинов, ресторанов и других заведений. Отличная транспортная доступность: в паре минут пешком находятся несколько остановок общественного транспорта, от которых можно добраться почти до любой части города. Кроме того, жилой комплекс находится около крупных транспортных магистралей. В здании разместятся 262 квартиры с различными планировками — от студий площадью 24,8 квадратных метров до трехкомнатных квартир площадью 95,9 "квадратов". Также на выбор покупателей будут представлены 16 квартир типа "пентхаус" на верхних этажах площадью до 150 квадратных метров и 3 видовые двухкомнатные квартиры площадью до 89,6 "квадратов". На прилегающей территории расположится просторная озелененная зона с ландшафтным дизайном и детскими площадками для малышей всех возрастов, где они смогут кататься на аттракционах, гулять или заниматься подвижными играми. Для любителей физкультуры и активного образа жизни на придомовой территории предусмотрены спортплощадки с тренажерами. Особый акцент будет сделан на безопасности и комфорте — доступ ко двору будут иметь только жители дома, а за порядком следить камеры наблюдения и круглосуточная охрана. На всей территории расставлены парковые светильники. Предусмотрен консьерж-сервис. Для хранения автомобилей есть подземная парковка и наземная стоянка, отделенная от двора. При этом вся территория будет приспособлена для граждан с ограниченными возможностями.

















































































































