


206 053 ₽/м²
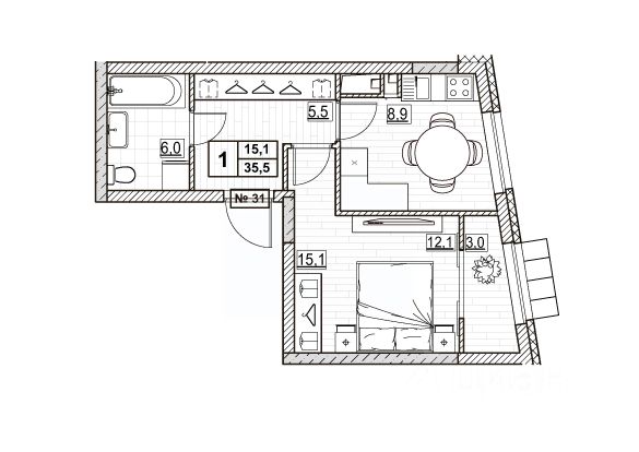
Новый жилой комплекс "Подкова на Волге" от ГК Подкова дарит уникальную возможность работать в ритме большого города, отдыхая в атмосфере спокойного речного побережья. О КОМПЛЕКСЕ Современный жилой комплекс на ул. Сергея Акимова в Канавинском районе Нижнего Новгорода будет состоять из девяти многоэтажных домов у побережья реки Волга. Премьерный дом комплекса - это 13-этажный монолитно-кирпичный корпус с более чем 100 видовыми квартирами, наполненными естественным светом и панорамными видами на город. КОНСТРУКЦИЯ И ИНФРАСТРУКТУРА Строительство ведется с применением кирпично-монолитной технологии, обеспечивающей идеальный микроклимат внутри помещений: сохранение тепла зимой, естественную прохладу летом и превосходную звукоизоляцию между квартирами. В здании функционируют 6 лифтов (3 пассажирских и 3 грузопассажирских). Для удобства жильцов в каждом подъезде предусмотрены современные зоны хранения — келлеры (кладовые) и вместительные колясочные. Входные группы отделаны в теплых природных оттенках с использованием качественных материалов. ПЛАНИРОВКИ И ОТДЕЛКА Разнообразный спектр планировочных решений удовлетворит потребности различных категорий покупателей — от студий до четырехкомнатных квартир. Некоторые варианты включают мастер-спальни с персональными гардеробами и санузлами. Высота потолков: 2,70 м. Все квартиры предлагаются с предчистовой отделкой, избавляющей новоселов от необходимости проведения тяжелых черновых работ и позволяющей сразу приступить к финишной отделке по собственному вкусу. Купить 1-комнатную квартиру на 5 этаже в Нижегородской области.


















































































































