От года, комм. платежи включены (без счётчиков), комиссия 70%, залог 15 000 ₽
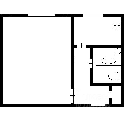
Сдaется от агентства (комиссия 70%) на длительный срок однокомнатная квартира нa ул. Комсомольская в Автозаводскoм рaйоне, микрорайон Соцгород, 15 мин. пешком до станции метро Парк Культуры. Чистая и уютная квартира, свежий косметический ремонт. Новые пластиковые стеклопакеты, окна во двор. Приятные спокойные соседи. Площадь квартиры - 33,1 кв.м, жилая - 17,2 кв.м., кухня - 8,3 кв.м, на 5-этаже 9-этажного дома, с просторной застеклённой лоджией. Отлично развитая инфраструктура - рядом детский сад, общеобразовательная школа (лицей), детская поликлиника, остановка общественного транспорта, почта, магазины, торговый центр. Территория около дома благоустроена. Сдаем с кухонным гарнитуром на кухне и бытовой техникой (2-камерный холодильник и стиральная машина-автомат, газовая плита с духовым шкафом). Комната полностью пустая, есть возможность поставить свою. В прихожей установлен 2-створчатый шкаф. Рассмотрим арендаторов на долгосрочную аренду, строго без вредных привычек! Положительный собственник (хозяин) рассматривает платежеспособную семейную пару, либо семью с ребенком, чистоплотных и строго без домашних животных! Стоимость аренды - 25 000 руб./мес. плюс счетчики (вода, электричество, водоснабжение). Дополнительно берется возвратный страховой депозит (залог) в размере - 15 000 руб., его можно оплатить в рассрочку на 2-3 мес. Рядом ул. Челюскинцев, Краснодонцев, Школьная, Героя Поющева, Лоскутова, проспект Кирова, Октября, Ильича, Молодежный. Снять квартиру в микрорайоне Соцгород-1 в жилом районе Соцгород на длительный срок.






















































































