Мы используем куки-файлы. Соглашение об использовании
Только на Циан

Продаётся просторный коттедж.

Площадь дома150 м²
Участок7 сот.
Материал домаГазобетонный блок
Этажей в доме2
Год постройки2025
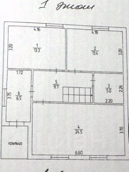
Арт. 134469851 Продаётся уютный и просторный коттедж площадью 150 кв.м. и 7 соток выровненного участка в экологичном месте-деревне Белоусово. Постройка 2025 года! Первый этаж с отделкой "под ключ" Просторный хол/ Две гостевых спальни / Кухня / Гостиная/Санузел - Натяжные потолки с освещением - Кварцвиниловое покрытие - В санузле установлена вся сантехника, стены- декоративная панель - Водяной теплый пол с регулировкой по зонам - Вентиляция в гостиной, кухне и санузле - Газовый двухконтурный котёл Navien - Радиаторы отопления - 6 штук - Септик 4,5 куб. - Электричество, вода, канализация, газ - всё подключено! Перегородки шумоизолированы и утеплены (100мм). Межэтажное перекрытие утеплено на 200мм. На второй этаж установлена лестница. О доме: Размер дома 9+10 метров Фундамент : лента + монолитная плита,обвязка арматурой 12 мм Стены: газобетонный блок-300мм ,утепление пенополистиролом(ППС 16ф)толщиной 50мм. Снаружи декоративная штукатурка "короед" Окна : Окна Kalevo линейка Pro 4 камеры 62 см Стропильная система - из доски 20050 мм, первого сорта,обработанная огнебиозащитой Кровля: металлочерепица 0,5 мм, цвет графит. Установлены гифро-ветро защита Пол: полусухая стяжка толщиной 80мм., утеплён экструзионным пенополистиролом Техниколь(графит) Дому присвоен адрес, есть кадастровые номера. Один взрослый собственник. Все документы готовы, быстрый выход на сделку. Показ в удобное время по договоренности. Татьяна Князева АН Недвижимость РФ
Позвоните автору
Вам ответят на все вопросы

О доме

Площадь

150 м²

Материал дома

Газобетонный блок

Количество этажей

2

Количество спален

5

Год постройки

2025

Об участке

Площадь

7 сот.

Статус участка

Индивидуальное жилищное строительство

Коммуникации и удобства

Санузел

В доме

Канализация

Есть

Водоснабжение

Скважина

Газ

Есть

Спросите умного помощника
Получите экспертное мнение о жилье

Расположение

Подпишитесь на объявления в этой локации
Мы сообщим, как только поблизости появится что‑нибудь новенькое
Ипотечный калькулятор
  • Базовая
  • Семейная
  • ИТ-ипотека
  • 20%
  • 30%
  • 40%
  • 50%
лет
  • 10 лет
  • 20 лет
  • 30 лет
Загружаем предложения от застройщика и банков
Хотите продать недвижимость?Разместите объявление на ЦианРазместить
10 050 000 ₽
Цена за метр
67 000 ₽/м²
Ипотека
возможна
Агентство недвижимости
Документы проверены
На Циан
3 года
Объектов в работе
63