Мы используем куки-файлы. Соглашение об использовании

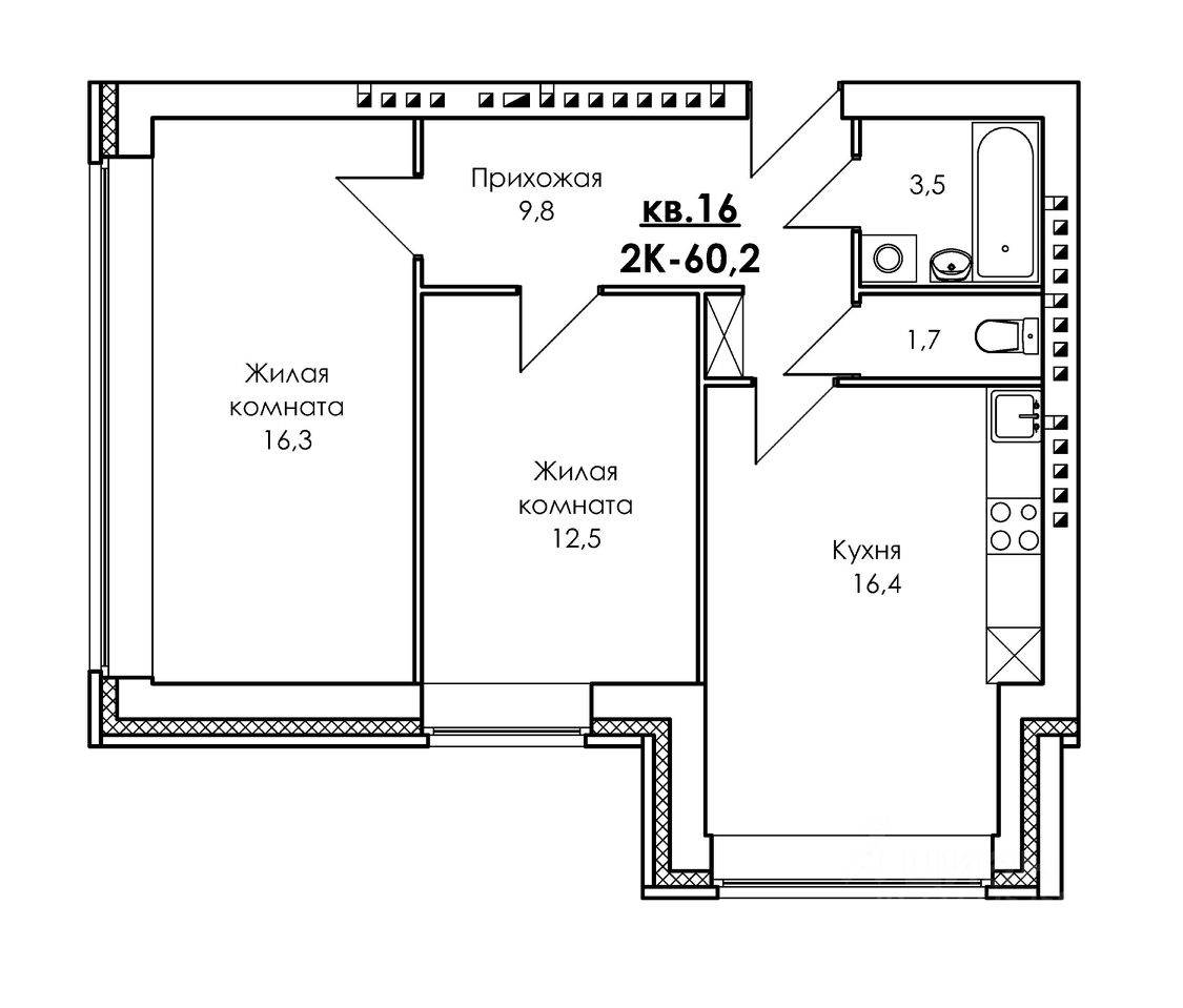
Продается 2-комн. квартира, 60,2 м²

Общая площадь60,2 м²
Жилая площадь28,8 м²
Площадь кухни16,4 м²
Этаж4 из 4
Год постройки2024
Квартира в новом доме от Застройщика в жилом комплексе "Возрождение", в непосредственной близости от Серафимо-Дивеевского монастыря. Никто не прописан. Без обременений. Развитая инфраструктура: рядом магазин, школа, детский сад. Территория благоустроена. Предусмотрены наземные парковочные места для автомобилей жителей и гостей микрорайона, созданы площадки для игр детей школьного и дошкольного возраста, прогулочные зоны, спортивные площадки для детей и взрослых. Квартира в состоянии предчистовой отделки White box - стены подготовлены под поклейку обоев, выполнена заливка чернового пола под укладку напольного покрытия (полусухая цементная стяжка армированная фиброволокном), установлены радиаторы отопления, выполнена электро- и сантехническая разводка, установлены пластиковые окна с 2-х камерным стеклопакетом, установлена металлическая противопожарная входная дверь. Подходит под программу Семейная ипотека со ставкой 6% годовых
Позвоните автору
Вам ответят на все вопросы

О квартире

Тип жилья

Вторичка

Общая площадь

60,2 м²

Жилая площадь

28,8 м²

Площадь кухни

16,4 м²

Высота потолков

2,5 м

Санузел

1 раздельный

Ремонт

Без ремонта

О доме

Год постройки

2023

Тип перекрытий

Нет информации

Парковка

Наземная

Отопление

Нет информации

Аварийность

Нет

Спросите умного помощника
Получите экспертное мнение о жилье

Расположение

Ипотечный калькулятор
  • Базовая
  • Семейная
  • ИТ-ипотека
  • 20%
  • 30%
  • 40%
  • 50%
лет
  • 10 лет
  • 20 лет
  • 30 лет
Загружаем предложения от застройщика и банков
Помощь риелтора
Проверенный риелтор поможет купить или продать квартиру
7 000 000 ₽
Цена за метр
116 279 ₽/м²
Условия сделки
свободная продажа
Ипотека
возможна
Агентство недвижимости
Суперагент