Мы используем куки-файлы. Соглашение об использовании
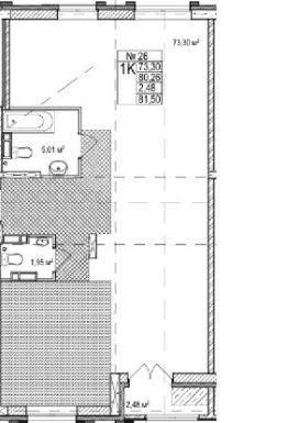
Общая площадь81,5 м²
Этаж3 из 7
Год сдачи2026
ДомНе сдан
ОтделкаБез отделки
Продаётся 3-комнатная квартира в строящемся доме (дом 3), срок сдачи: IV-кв. 2026, общей площадью 81.5 кв.м., на 3 этаже. "Дом с террасами" - это уникальный жилой комплекс бизнес-класса, расположенный в деловом и культурном центре Нижнего Новгорода на пересечении улиц М. Горького, Малой Ямской и Ильинской. Здесь представлены большие светлые квартиры с современными планировками. Особенностью проекта стали просторные индивидуальные террасы на верхних и средних этажах, позволяющие из владельцам уединенно отдохнуть на природе, не выходя из собственной квартиры. "Дом с террасами" - это также и новая высотная доминанта исторического центра Нижнего Новгорода. Благодаря своему расположению жилой комплекс обладает великолепными видовыми характеристиками. Из окон и с террас открываются прекрасные панорамы города. Несмотря на свою высотность, жилой комплекс гармонично вписан в ландшафт благодаря архитектурному решению корпусов, которое придает им особую легкость.

О квартире

Тип жилья

Новостройка

Общая площадь

81,5 м²

Высота потолков

3 м

Отделка

Без отделки

О доме

Количество лифтов

2 пассажирских

Тип дома

Монолитно-кирпичный

Понравилась квартира — узнайте о ней больше

Застройщик ответит на все вопросы

Варианты отделки в ЖК

  • Без отделки

О ЖК «Дом с террасами»

  • Сдача комплекса
    Сдача в 4 кв. 2026, есть сданные
  • Застройщик
    Ойкумена
  • Класс
    Бизнес
  • Тип дома
    Монолитно-кирпичный, кирпичный
  • Парковка
    Гостевая
  • Отделка
    Без отделки
  • Тип комплекса
    Жилой комплекс
Похоже на то, что вы ищете?

Особенности жилого комплекса

  • Парковка

  • Внутренний двор

  • Архитектура

  • Входная группа

Подробнее о жилом комплексе

Акции в ЖК «Дом с террасами»

Узнайте про персональные условия и дополнительные скидки при покупке квартиры у застройщика

Материнский капитал

Военная ипотека

Ипотечный калькулятор
  • Базовая
  • Семейная
  • ИТ-ипотека
  • 20%
  • 30%
  • 40%
  • 50%
лет
  • 10 лет
  • 20 лет
  • 30 лет
Загружаем предложения от застройщика и банков

Расположение

Корпус проверен наш.дом.рф
Обновлено 22 апреля 2026
  • Нет в реестре проблемных объектов
  • Застройщик не банкрот
  • Есть эскроу счёт
  • Актуальные фото стройки

Ещё квартиры в жилом комплексе

42 квартиры в продаже · Сдача в 4 кв. 2026, есть сданные
Агентство недвижимости
Монолит Истейт
  • 7 лет на Циане
  • 23 635 000 ₽
    Цена за метр
    290 000 ₽/м²
    Условия сделки
    долевое участие (214-ФЗ)
    Агентство недвижимости
    Монолит Истейт