Мы используем куки-файлы. Соглашение об использовании
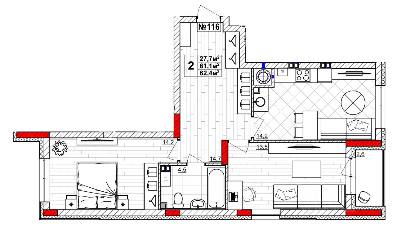
Общая площадь62,4 м²
Жилая площадь27,7 м²
Площадь кухни14,2 м²
Этаж2 из 4
Год сдачи2027
ДомНе сдан
ОтделкаЧистовая
Продается 2 комнатная квартира на 2 этаже нового жилого комплекса комфорт-класса "Cмородина" от одного из крупнейших застройщиков ГК ННДК. Квартиру можно купить по ипотеке, в т.ч. и по льготным программам. В доме есть лифт, высота потолков в квартире 2,7м, лоджия застеклена. Квартира будет оснащена индивидуальным современным газовым котлом, что позволит значительно экономить на квартплате. Рядом магазин "Магнит", гипермаркет "Лента" и остановка общественного транспорта. В ЖК большая закрытая безопасная территория с детскими и спортивными площадками. Есть площадка для выгула собак. Для автомобилей есть открытая парковка. В доме будет установлена станция очистки холодной воды. На -1 этаже можно приобрести сити-бокс-место для хранения габаритных и сезонных вещей.

О квартире

Тип жилья

Новостройка

Общая площадь

62,4 м²

Жилая площадь

27,7 м²

Площадь кухни

14,2 м²

Высота потолков

2,7 м

Санузел

1 совмещенный

Балкон/лоджия

1 лоджия

Вид из окон

Во двор

Отделка

Чистовая

О доме

Количество лифтов

4 пассажирских

Тип дома

Монолитно-кирпичный

Понравилась квартира — узнайте о ней больше

Застройщик ответит на все вопросы

Отделка квартиры

Чистовая: ремонт сделан, остаётся расставить мебель и заселиться

Варианты отделки в ЖК

  • Чистовая
  • Без отделки

3D-тур

Посмотрите 3D-тур, чтобы оценить объект

О ЖК «Смородина»

  • Сдача комплекса
    Сдача в 2027—2028, есть сданные
  • Застройщик
    ННДК
  • Класс
    Комфорт
  • Тип дома
    Монолитно-кирпичный
  • Парковка
    Гостевая
  • Отделка
    Без отделки, чистовая
  • Тип комплекса
    Жилой комплекс
Похоже на то, что вы ищете?

Особенности жилого комплекса

  • Отделка

  • Внутренний двор

Подробнее о жилом комплексе

Акции в ЖК «Смородина»

Узнайте про персональные условия и дополнительные скидки при покупке квартиры у застройщика

Материнский капитал

Ипотечный калькулятор
  • Базовая
  • Семейная
  • ИТ-ипотека
  • 20%
  • 30%
  • 40%
  • 50%
лет
  • 10 лет
  • 20 лет
  • 30 лет
Загружаем предложения от застройщика и банков

Расположение

Корпус проверен наш.дом.рф
Обновлено 26 марта 2024
  • Нет в реестре проблемных объектов
  • Застройщик не банкрот
  • Есть эскроу счёт
  • Неактуальные фото стройки

Ещё квартиры в жилом комплексе

208 квартир в продаже · Сдача в 2027—2028, есть сданные
ЗастройщикННДК
Год основания: 2012
Строится: 6 домов в 5 ЖК
9 790 000 ₽
Цена за метр
156 891 ₽/м²
Условия сделки
долевое участие (214-ФЗ)