Мы используем куки-файлы. Соглашение об использовании
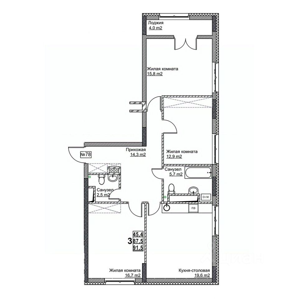
Общая площадь91,5 м²
Жилая площадь45,4 м²
Площадь кухни19,6 м²
Этаж10 из 24
Год сдачи2026
ДомНе сдан
ОтделкаБез отделки
Продается 3 комнатная квартира на 10 этаже нового жилого комплекса бизнес-класса гранд-квартал Бетанкур от одного из крупнейших застройщиков ННДК. Квартиру можно купить по ипотеке. Квартира сдается в черновой отделке. Рядом вся необходимая инфраструктура - ТРЦ Седьмое небо, магазины, школы и садики. Рядом станция метро. В ЖК закрытая безопасная территория с ландшафтным дизайном и детской и спортивной площадками. В доме будет установлена станция очистки холодной воды. Для автомобилей можно приобрести место на подземной парковке. На -1 этаже можно купить сити-бокс (место для хранения габаритных сезонных вещей).

О квартире

Тип жилья

Новостройка

Общая площадь

91,5 м²

Жилая площадь

45,4 м²

Площадь кухни

19,6 м²

Высота потолков

2,7 м

Санузел

1 раздельный

Балкон/лоджия

1 лоджия

Отделка

Без отделки

О доме

Тип дома

Монолитно-кирпичный

Пандус

Есть

Понравилась квартира — узнайте о ней больше

Застройщик ответит на все вопросы

Варианты отделки в ЖК

  • Под ключ
  • Предчистовая
  • Без отделки

3D-тур

Посмотрите 3D-тур, чтобы оценить объект
Похоже на то, что вы ищете?

Акции в ЖК «Гранд-квартал «Бетанкур»»

Узнайте про персональные условия и дополнительные скидки при покупке квартиры у застройщика

Материнский капитал

Ипотечный калькулятор
  • Базовая
  • Семейная
  • ИТ-ипотека
  • 20%
  • 30%
  • 40%
  • 50%
лет
  • 10 лет
  • 20 лет
  • 30 лет
Загружаем предложения от застройщика и банков

Расположение

Корпус проверен наш.дом.рф
Обновлено 15 апреля 2026
  • Нет в реестре проблемных объектов
  • Застройщик не банкрот
  • Есть эскроу счёт
  • Актуальные фото стройки

Ещё квартиры в жилом комплексе

137 квартир в продаже · Сдача в 4 кв. 2026, есть сданные
ЗастройщикННДК
Год основания: 2012
Строится: 6 домов в 5 ЖК
23 390 000 ₽
Цена за метр
255 628 ₽/м²
Условия сделки
долевое участие (214-ФЗ)