Мы используем куки-файлы. Соглашение об использовании
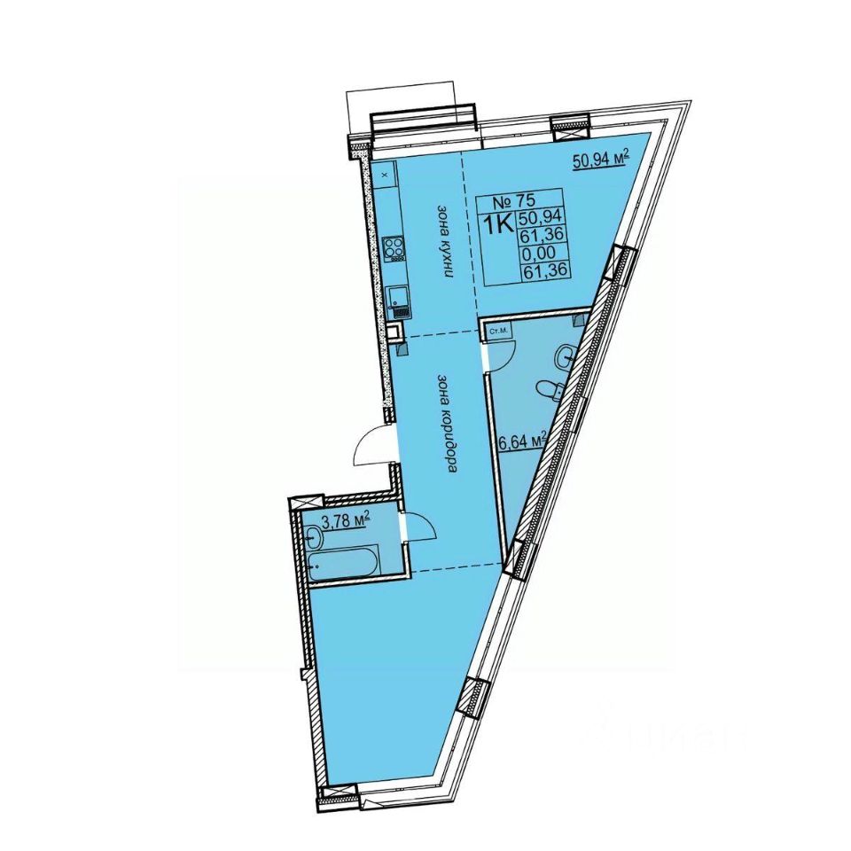
Общая площадь61,36 м²
Жилая площадь50,9 м²
Этаж1 из 4
Год сдачи2026
ДомНе сдан
ОтделкаЧерновая
Продаётся 1-комнатная квартира в строящемся доме (дом 1), срок сдачи: III-кв. 2026, общей площадью 61.36 кв.м., на 1 этаже. Жилой комплекс премиум-класса "Приоритет" на улице Грузинская - это исключительная возможность жить в историческом центре Нижнего Новгорода. Фасады здания выходят непосредственно в сквер имени Свердлова и к театру "Комедiя". Жилой комплекс расположен в старейшем районе города, насыщенном атмосферой истории, искусства и светской жизни. Соседствуя с ключевыми культурными и бизнес-точками города, "Приоритет" дает вам возможность всегда быть в центре событий. Рестораны и театры, парки и скверы, бизнес-центры и офисы - все лучшее уже здесь. Особый статус проекта подчёркивают современные архитектурные решения: лаконичные фасады здания, архитектурная подсветка и дизайн мест общего пользования. На первом этаже находится двухсветное лобби, выполненное по дизайнерскому проекту. В отделке интерьеров широко используются натуральные материалы. Сочетание мрамора, дерева и больших зеркал создают невероятно красивый ансамбль. На шести этажах располагаются квартиры свободной планировки с увеличенной высотой потолков и панорамным остеклением. Никаких ограничений в планировании пространства! Закрытый двор, видеонаблюдение на каждом этаже и комната охраны обеспечивают высокий уровень приватности и безопасности жителей и гостей комплекса. На двух подземных этажах располагается большой паркинг со станциями зарядки электромобилей, а также сити-боксы для хранения вещей. Поселиться в историческом центре в нескольких шагах от сквера имени Свердлова - уникальная возможность и привилегия для жителей большого города.

О квартире

Тип жилья

Новостройка

Общая площадь

61,36 м²

Жилая площадь

50,9 м²

Высота потолков

3 м

Отделка

Черновая

О доме

Количество лифтов

5 грузовых

Тип дома

Монолитно-кирпичный

Понравилась квартира — узнайте о ней больше

Застройщик ответит на все вопросы

Варианты отделки в ЖК

  • Черновая
  • Без отделки

3D-тур

Посмотрите 3D-тур, чтобы оценить объект
Похоже на то, что вы ищете?

Акции в ЖК «Приоритет»

Узнайте про персональные условия и дополнительные скидки при покупке квартиры у застройщика

Материнский капитал

Ипотечный калькулятор
  • Базовая
  • Семейная
  • ИТ-ипотека
  • 20%
  • 30%
  • 40%
  • 50%
лет
  • 10 лет
  • 20 лет
  • 30 лет
Загружаем предложения от застройщика и банков

Расположение

Корпус проверен наш.дом.рф
Обновлено 16 апреля 2026
  • Нет в реестре проблемных объектов
  • Застройщик не банкрот
  • Есть эскроу счёт
  • Актуальные фото стройки

Ещё квартиры в жилом комплексе

34 квартиры в продаже · Сдача в 3 кв. 2026
ЗастройщикСЗ Андор
Год основания: 1997
Строится: 8 домов в 3 ЖК
26 340 000 ₽
Цена за метр
429 270 ₽/м²
Условия сделки
свободная продажа