Мы используем куки-файлы. Соглашение об использовании
Общая площадь30,3 м²
Жилая площадь17,4 м²
Площадь кухни5,6 м²
Этаж3 из 5
Год постройки1959
Код объекта: 2013832. Сдаётся уютная 1-комнатная квартира на длительный срок! Об объекте: Площадь: 30,3 м² — всё необходимое в одном пространстве. Этаж: 3-й этаж 5-этажного дома (удобно и без шума от верхних соседей). Ремонт: Квартира чистая, ухоженная, готова к заселению! Во всех комнатах установлены новые современные окна — тепло, тихо и светло. Полностью укомплектована для жизни: Мебель: удобный диван, вместительный шкаф для вещей. Техника: есть плита и стиральная машина. Санузел: совмещенный, аккуратный. Главное преимущество — отличная локация! Метро всего в 8 минутах неспешной ходьбы. Рядом остановки автобуса и трамвая — вы в любой точке города за считанные минуты. Отличная транспортная развязка — легко добраться как на работу в центр, так и за город на выходные. Идеально для: одного человека или пары, кто ценит чистоту, транспортную доступность и не хочет тратить время на поиск мебели и техники. Сдаётся на длительный срок ответственным и аккуратным жильцам. Готовы показать квартиру в удобное для вас время!
Позвоните автору
Вам ответят на все вопросы

О квартире

Общая площадь

30,3 м²

Жилая площадь

17,4 м²

Площадь кухни

5,6 м²

Высота потолков

2,7 м

Санузел

1 совмещенный

Вид из окон

На улицу и двор

Спальных мест

2

Ремонт

Косметический

О доме

Год постройки

1959

Строительная серия

1-447

Тип дома

Кирпичный

Тип перекрытий

Нет информации

Подъезды

4

Парковка

Наземная

Отопление

Центральное

Аварийность

Нет

Газоснабжение

Центральное

В квартире есть

Стиральная машина
Телевизор
Ванна
Мебель на кухне
Мебель в комнатах
Спросите умного помощника
Получите экспертное мнение о жилье
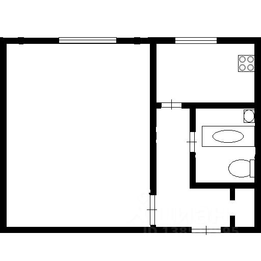
Планировка этой квартирыПо данным Циан
Планировка этой квартиры по данным Циан

Расположение

Зимой будет тепло
Дома такой же серии обычно хорошо сохраняют тепло
7
Платёж такой же, а квартира — вашаБесплатно подберём новостройки под ваш бюджет
+7
Нажимая на кнопку, вы соглашаетесь на обработку персональных данных
25 000 ₽/мес.
Оплата ЖКХ
5 000 ₽ (без счётчиков)
Залог
15 000 ₽
Комиссия
80%
Предоплаты
нет
Срок аренды
от года
Условия проживания
можно с детьми
Агентство недвижимости
Суперагент
На Циан
менее года
Объектов в работе
538