Мы используем куки-файлы. Соглашение об использовании
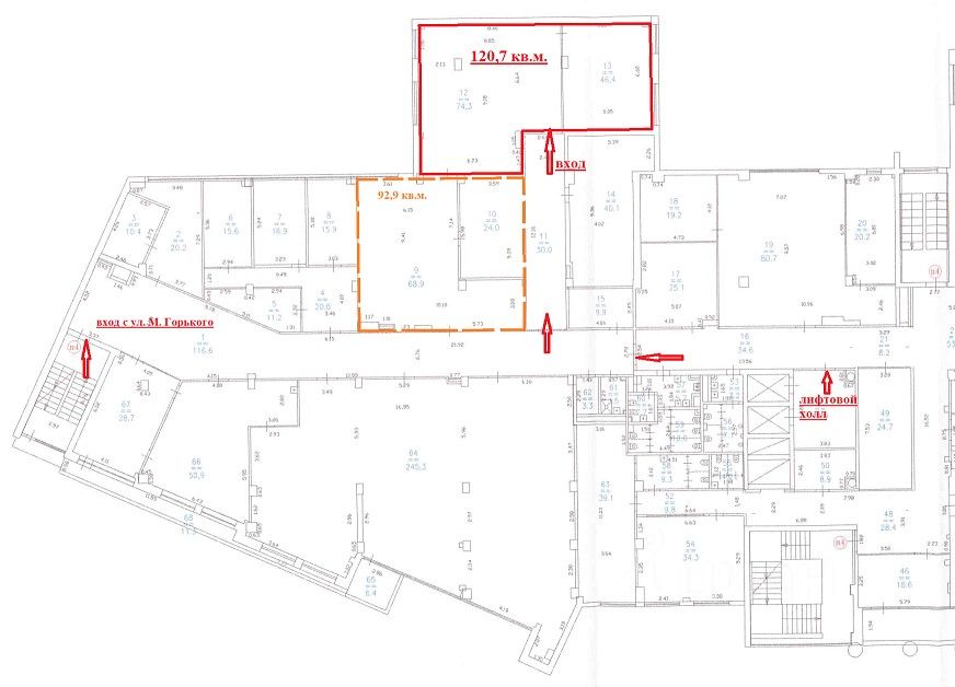
Площадь120,7 м²
Этаж2 из 7
Парковка20 мест
ПомещениеСвободно
КлассA
Отчёт о привлекательности объектаУзнайте, насколько помещение и район подходят для вашего бизнеса
Что входит в отчёт
  • Охват населения
  • Пешеходный трафик
  • Автомобильный трафик
  • Средний бюджет семьи по району
  • Арендные ставки рядом
  • Точки притяжения
  • Конкуренты в радиусе 1 км
  • Рекомендации по выбору места для бизнеса
Сдается в аренду уютный офис в центре города, в престижном бизнес-центре "Богемия Палас". Основные характеристики офиса: - Площадь: 120,7 кв.м. (можно увеличить до 213,6 кв.м. см планировку) - Расположение: БЦ "Богемия Палас", ул.М.Горького, д.262, 2 этаж. - Рядом вход в БЦ с ул.М.Горького. - Современная офисная отделка - Большие окна выходят во двор - Кондиционирование и система вентиляции - Охрана и видеонаблюдение 24/7 - Есть возможность арендовать машиноместо в подземном паркинге. - Коммунальные услуги оплачиваются отдельно. - Арендодатель является плательщиком НДС 5% (включен в арендную плату) Преимущества бизнес-центра "Богемия Палас": - Престижное местоположение в деловом центре города - Развитая инфраструктура: рестораны, кафе, магазины в шаговой доступности - Удобный доступ к общественному транспорту - Профессиональное управление и обслуживание здания Звоните, мы ответим на все интересующие вопросы. Не забудьте добавить объявление в Избранное, чтобы не потерять. Подпишитесь на наш профиль, чтобы получать информацию о других интересных объектах коммерческой недвижимости.
lock

Войдите или зарегистрируйтесь
для просмотра информации

Просматривайте условия сделки и всю информацию об объекте
Сохраняйте фильтры в поиске и не вводите заново
Доступ к избранному с любого устройства
Неограниченное добавление в избранное
Позвоните автору
Вам ответят на все вопросы
Остались вопросы по объявлению?
Позвоните владельцу объявления и уточните необходимую информацию.
  • Инфраструктура
  • Похожие рядом
Помощь надёжных риелторов
Риелтор партнёр Циан поможет купить или продать любую недвижимость
СобственникID 98027308
    139 410 ₽/мес.

    Прямая аренда (от года), минимальный срок аренды 11 месяцев, обеспечительный платёж 139410 ₽, предоплата за 1 месяц

    1 869 $/мес.
    1 588 /мес.
    Цена за метр
    13 861 ₽ в год
    Налог
    НДС включен: 25 139 ₽
    Комиссия
    нет
    Коммунальные платежи
    не включены
    Эксплуатационные расходы
    не включены
    СобственникID 98027308