Мы используем куки-файлы. Соглашение об использовании
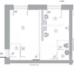
Помещение свободного назначения, 41,8 м²
Аукцион

Сдается помещение свободного назначения, 41,8 м²

Площадь41,8 м²
Этаж1 из 1
Отчёт о привлекательности объектаУзнайте, насколько помещение и район подходят для вашего бизнеса
Что входит в отчёт
  • Охват населения
  • Пешеходный трафик
  • Автомобильный трафик
  • Средний бюджет семьи по району
  • Арендные ставки рядом
  • Точки притяжения
  • Конкуренты в радиусе 1 км
  • Рекомендации по выбору места для бизнеса
Сбер А предлагает к аренде помещения площадью 41,8 кв.м, расположенного по адресу: Нижегородская область, г. Бор, рп. Большое Пикино, ул. Больничная, д. 24 Аренда посредством проведения торгов на электронной площадке Сбербанк-АСТ. Номер процедуры: SBR065-2603310002 Собственник: Волго-Вятский банк ПАО Сбербанк О лоте: Нежилое помещение общей площадью 41.8 кв. м Этаж: 1 По всем вопросам, связанным с лотом, обращайтесь в рабочее время по телефону с 09:00 до 18:00 по МСК.
АукционОбъект реализуется посредством электронных торгов. Конечную информацию об оплате, дополнительных платежах и условия заключения договора смотрите в документах извещения к лоту, на сайте электронной торговой площадки.
АукционОбъект продаётся на сайте электронных торгов. В объявлении указана стартовая цена
lock

Войдите или зарегистрируйтесь
для просмотра информации

Просматривайте условия сделки и всю информацию об объекте
Сохраняйте фильтры в поиске и не вводите заново
Доступ к избранному с любого устройства
Неограниченное добавление в избранное
  • Инфраструктура
  • Похожие рядом
  • Тип зданияАдминистративное здание
  • Общая площадь41,8 м²
Помощь надёжных риелторов
Риелтор партнёр Циан поможет купить или продать любую недвижимость
Начальная цена, аукцион
17 568 ₽/мес.
248 $/мес.
214 /мес.
Цена за метр
5 044 ₽ в год
Налог
НДС включен: 3 168 ₽
Комиссия
100%
Коммунальные платежи
не включены
Эксплуатационные расходы
не включены
Агентство недвижимости
Документы проверены