


179 000 ₽/м²
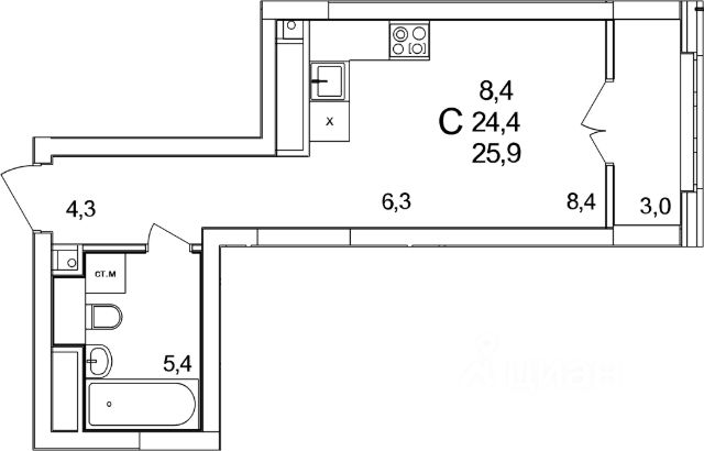
Продаётся квартира без отделки в КМ Анкудиновский Парк. Квартира без отделки — это отличный шанс создать интерьер под себя. Вы сами выбираете стиль, материалы и детали, чтобы сделать жильё именно таким, о котором мечтали. КМ Анкудиновский Парк — современный жилой комплекс, который уже стал полноценным районом для жизни. Здесь не нужно ждать, пока появится инфраструктура — всё уже есть и работает! Открыты 2 детских сада на 150 и 280 мест, 2 школы на 1350 местРаботают сетевые магазины, кафе и различные сервисыМножество игровых и спортивных площадок для детей и взрослыхПроектом предусмотрено строительство третьего детского сада, а также торгового центра, поликлиники и ФОКаНесколько действующих маршрутов общественного транспорта, на которых удобно добираться в разные части города Станьте жителем КМ Анкудиновский Парк и вы! Посетите наш шоурум и узнайте больше о выгодных предложениях и вариантах покупки в офисе продаж группы компаний Каркас Монолит.















































































































































