


167 897 ₽/м²
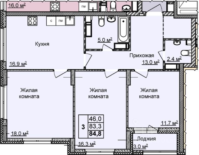
Трехкомнатная квартира с отделкой в ЖК "Мои Цветы" на 15 этаже. Общая площадь: 83.4 кв.м., жилая: 42.3 кв.м., площадь просторной кухни-столовой: 14.4 кв.м. Квартира угловая, идеально подойдет любителям тишины и панорамных видов. В квартире одна лоджия, один совмещенный и один раздельный санузел. Высота потолков 2.65 м. Дом монолитный, двухподъездный, высотой 17 этажей. Квартира находится в 1-й секции в корпусе 9. На этаже 5 квартир. В подъезде 1 пассажирский и 1 грузовой лифт. Окончание строительства - 2 квартал 2028 года. Оформление сделки по договору долевого участия. Мои Цветы - это продолжение существующей застройки ЖК "Цветы" по улице Академика Сахарова в Советском районе. Проектом застройки запланировано строительство 12 домов по семнадцать и двадцать пять этажей, детского сада, торгового центра и крытых паркингов. Квартиры в новых домах будут сдаваться с улучшенной отделкой "комфорт" на полу в жилых комнатах ламинат, в прихожей и кухне керамогранит, санузел полностью в плитке, на стенах универсальные и экологичные обои, во всей квартире натяжные потолки. Местоположение жилого комплекса отличает исключительная экология и соседство с излюбленными местами отдыха нижегородцев Щелоковским хутором и Ботаническим садом. Ландшафтный дизайн, продуманное благоустройство территории и обилие детских и спортивных площадок не оставят равнодушным никого из будущих жителей микрорайона! Важным отличием ЖК является наличие уже существующей социальной и торговой инфраструктуры: два детских сада, фитнес-центр, гипермаркет, кафе, магазины и многое другое - здесь уже есть всё для комфортной жизни. #2MVFa8












































































































































































