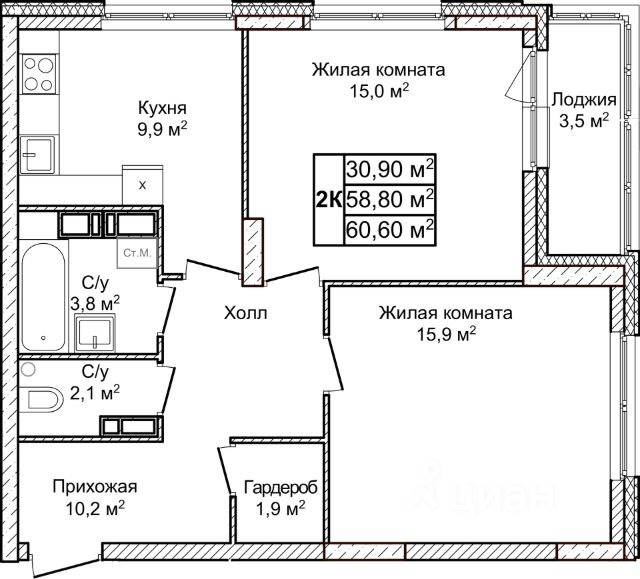
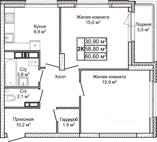
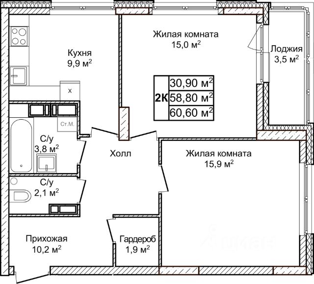
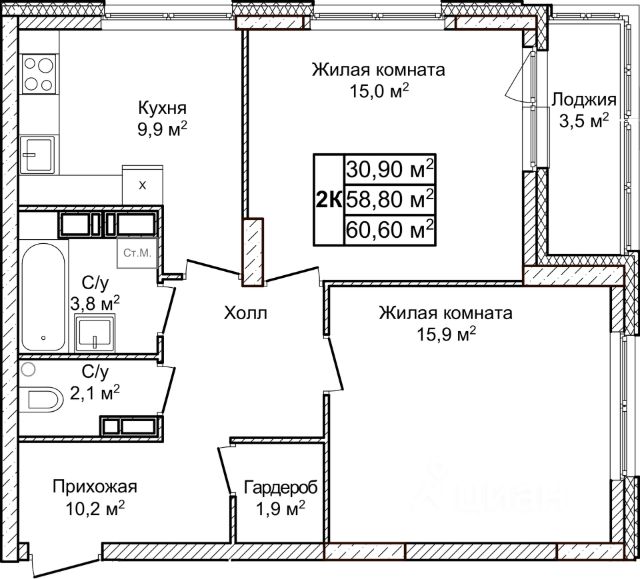
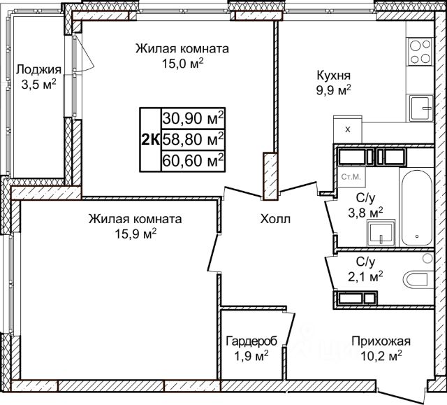
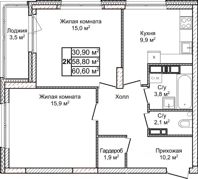
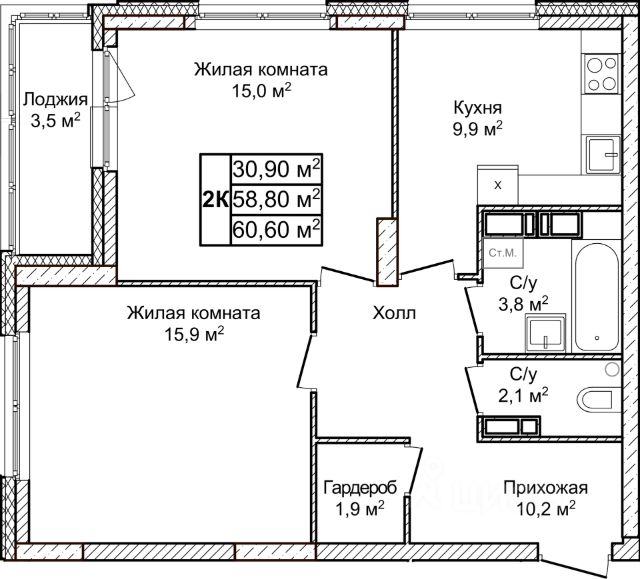
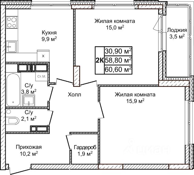
128 000 ₽/м²
Сейчас кипит стройка, но совсем скоро — это будет уютный, камерный дом из качественных материалов, созданный для жизни, а не просто для проживания. Проект реализует надежный застройщик ООО СЗ "Дом на Мурашкинской" — группа компаний "Дирекция по строительству" — что гарантирует точный срок сдачи квартир. Еще немного и эти стены превратятся в место, где каждая деталь будет говорить об одном — вы по-настоящему дома!



























































































