107 543 ₽/м²
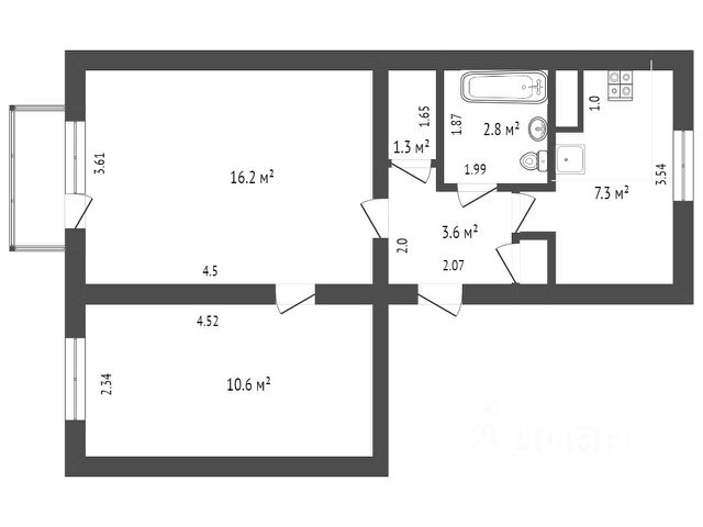
Арт. 128735953 Продается квартира на ул. Мира, 9а Предлагаем вашему вниманию уютную квартиру общей площадью 41.1 м², расположенную на пятом этаже пятиэтажного кирпичного дома. Характеристики: • Первая комната: 18 м² • Вторая комната: 9 м² • Кухня: 6 м² • Изолированный санузел • Просторная прихожая Квартира находится на комфортном этаже, а окна выходят на площадь, что обеспечивает прекрасный вид и хорошее освещение. В шаговой доступности находятся школы, детские сады и спортивные секции, что делает это место идеальным для семей с детьми. В квартире установлены новые стеклопакеты, что обеспечивает хорошую тепло- и звукоизоляцию. Мебель остается новым собственникам, что позволит вам сразу же заселиться без лишних затрат. Квартира требует ремонта, но не критично, что дает вам возможность реализовать свои идеи по созданию идеального пространства для жизни. Дом расположен в спокойном районе с развитой инфраструктурой: рядом магазины, аптеки и остановки общественного транспорта. Хорошие соседи создают дружелюбную атмосферу, а отсутствие проблем с парковкой добавляет удобства для владельцев автомобилей. Не упустите возможность стать владельцем этой квартиры! Звоните для получения дополнительной информации и организации просмотра. Продается 2-комнатная квартира в кирпичном доме в Кстово.



















































































