


220 884 ₽/м²
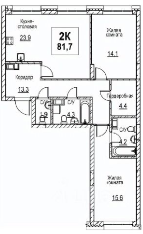
Продается Нет комнатная квартира на во двор и на улицу этаже нового жилого комплекса бизнес-класса гранд-квартал Бетанкур от одного из крупнейших застройщиков ГК ННДК. Квартиру можно купить по ипотеке. Высота потолков в квартире 2,7м, теплая лоджия. Квартира сдается в черновой отделке. Рядом вся необходимая инфраструктура - ТРЦ Седьмое небо, магазины, школы и садики. Рядом станция метро. В ЖК закрытая безопасная территория с ландшафтным дизайном и детской и спортивной площадками. В доме будет установлена станция очистки холодной воды. Для автомобилей можно приобрести место на подземной парковке. На -1 этаже можно купить сити-бокс (место для хранения габаритных и сезонных вещей).



















































































































