


161 200 ₽/м²
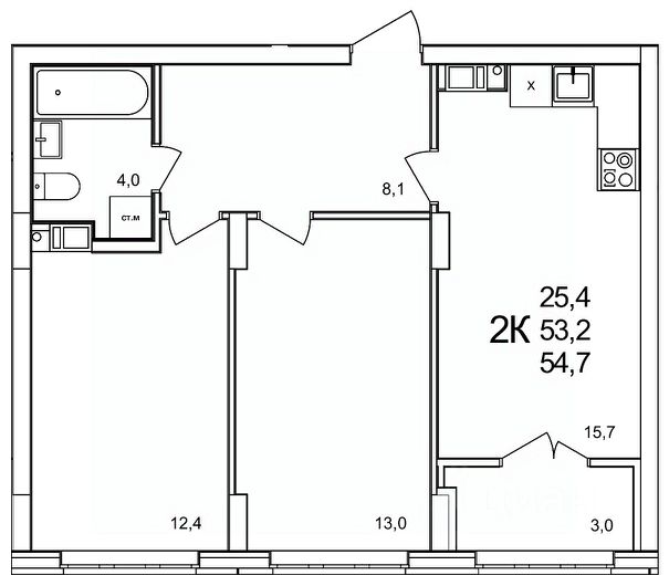
Продаётся 2-комн. квартира площадью 58,4 кв.м на 13 этаже 15 этажного дома (Корпус 6, Секция 1) проекта ПИК Савин парк. Светлый просторный подъезд на уровне земли, функциональная планировка, большие окна, c отделкой. Жилой квартал "Савин парк" возводится в Кстовском муниципальном районе, рядом с Советским районом Нижнего Новгорода. До центра Нижнего Новгорода всего 20 минут на автомобиле, а до города Кстово - 18 минут. В этом проекте есть всё для комфортной жизни. Кроме жилых домов, проект включает два детских сада, один из которых уже строится, школу и многоуровневые надземные паркинги. На первых этажах откроются кафе, магазины и другие сервисы - чтобы купить кофе к завтраку или пиццу на ужин, можно будет просто спуститься на лифте. На подземном этаже появятся кладовые, в которых удобно хранить крупные и сезонные вещи. Чтобы жители квартала чувствовали простор и получали больше солнечного света, мы построим дома разной высоты. Во дворах появятся уютные парки с детскими площадками и местами для отдыха - здесь можно поболтать с соседями, почитать в тени или позаниматься йогой. Спортивные площадки мы разместим так, чтобы шум от них не мешал жителям. В квартирах тоже будет много солнечного света за счёт балконов и больших окон. Вы получите ключи от квартиры с уже готовой отделкой - можно заезжать и жить. На машине от "Савин парка" можно доехать до ТРЦ "МЕГА" за 7 минут, за 14 минут - до Анкудиновского леса, а за 20 - до "Щёлоковского хутора". Артикул 952653 (Застройщик ООО "СЗ "Экострой")

























































































