


204 734 ₽/м²
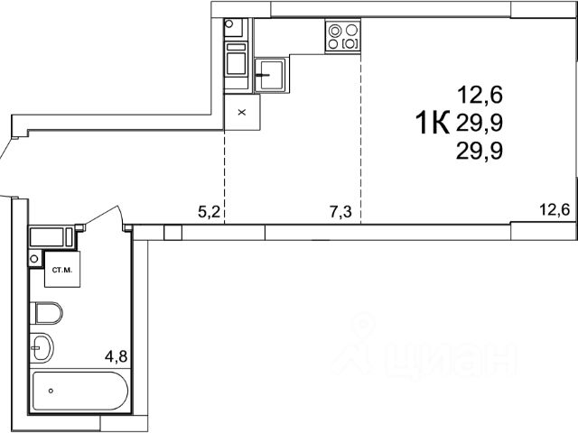
Просторная 1-комн. квартира с отделкой в ЖК "Мои Цветы" на 3 этаже. Общая площадь: 39.2 кв.м., жилая: 10.9 кв.м., площадь просторной кухни-столовой: 14.5 кв.м. Все окна выходят на одну сторону. В квартире один балкон, один совмещенный санузел. Высота потолков 2.65 м. Дом монолитный, двухподъездный, высотой 17 этажей. Квартира находится в 1-й секции в корпусе 9. На этаже 5 квартир. В подъезде 1 пассажирский и 1 грузовой лифт. Окончание строительства - 3 квартал 2026 года. Оформление сделки по договору долевого участия. Мои Цветы - это продолжение существующей застройки ЖК "Цветы" по улице Академика Сахарова в Советском районе. Проектом застройки запланировано строительство 12 домов по семнадцать и двадцать пять этажей, детского сада, торгового центра и крытых паркингов. Квартиры в новых домах будут сдаваться с улучшенной отделкой "комфорт" на полу в жилых комнатах ламинат, в прихожей и кухне керамогранит, санузел полностью в плитке, на стенах универсальные и экологичные обои, во всей квартире натяжные потолки. Местоположение жилого комплекса отличает исключительная экология и соседство с излюбленными местами отдыха нижегородцев Щелоковским хутором и Ботаническим садом. Ландшафтный дизайн, продуманное благоустройство территории и обилие детских и спортивных площадок не оставят равнодушным никого из будущих жителей микрорайона! Важным отличием ЖК является наличие уже существующей социальной и торговой инфраструктуры: два детских сада, фитнес-центр, гипермаркет, кафе, магазины и многое другое - здесь уже есть всё для комфортной жизни. #ZmwbFu Продается 1-комнатная квартира в ипотеку в новостройке в районе Советский в городе Нижний Новгород.




















































































































































