


136 923 ₽/м²
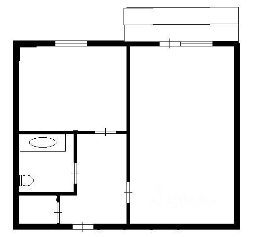
За объект уже внесли аванс 1-комн, квартира по адресу: Саров, улица Семашко, 16, планировка - стандартная, общая площадь - 32.5 кв.м, жилая - 17.9 кв.м, кухня - 6.2 кв.м, этаж 4 из 5 этажного дома, ремонт - косметический. Ваш уютный уголок в кирпичном доме на улице Семашко Приглашаем вас в светлую однокомнатную квартиру, где каждый метр пространства наполнен комфортом и уютом. Расположенная на 4 этаже кирпичного дома в новом районе, эта квартира станет идеальным выбором для тех, кто ценит функциональность и спокойствие. Из современных пластиковых окон открывается живописный вид на зеленый благоустроенный двор с детскими площадками, где всегда царит атмосфера безмятежности. Застекленный балкон послужит дополнительным пространством для отдыха или хранения вещей. Внутреннее пространство квартиры включает просторную жилую комнату, функциональную кухню и совмещенный санузел с косметическим ремонтом. Особое преимущество этого предложения расположение дома внутри квартала, вдали от шумных дорог. При этом вся необходимая инфраструктура находится в шаговой доступности: детский сад, ледовый дворец и торговый центр. Купить 1-комнатную квартиру на 4 этаже в Сарове.














































































