


168 500 ₽/м²
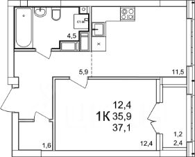
Продаётся 1-комн. квартира площадью 32,5 кв.м на 13 этаже 25 этажного дома (Корпус 8, Секция 1) проекта ПИК Савин парк. Светлый просторный подъезд на уровне земли, функциональная планировка, большие окна, предчистовая отделка. Жилой квартал "Савин парк" возводится в Кстовском муниципальном районе, рядом с Советским районом Нижнего Новгорода. До центра Нижнего Новгорода всего 20 минут на автомобиле, а до города Кстово - 18 минут. В этом проекте есть всё для комфортной жизни. Кроме жилых домов, проект включает два детских сада, один из которых уже строится, школу и многоуровневые надземные паркинги. На первых этажах откроются кафе, магазины и другие сервисы - чтобы купить кофе к завтраку или пиццу на ужин, можно будет просто спуститься на лифте. На подземном этаже появятся кладовые, в которых удобно хранить крупные и сезонные вещи. Чтобы жители квартала чувствовали простор и получали больше солнечного света, мы построим дома разной высоты. Во дворах появятся уютные парки с детскими площадками и местами для отдыха - здесь можно поболтать с соседями, почитать в тени или позаниматься йогой. Спортивные площадки мы разместим так, чтобы шум от них не мешал жителям. В квартирах тоже будет много солнечного света за счёт балконов и больших окон. Вы получите ключи от квартиры с уже готовой отделкой - можно заезжать и жить. На машине от "Савин парка" можно доехать до ТРЦ "МЕГА" за 7 минут, за 14 минут - до Анкудиновского леса, а за 20 - до "Щёлоковского хутора". Артикул 985721 (Застройщик ООО "СЗ "Экострой")






















































































































